Skip to main content
Munich

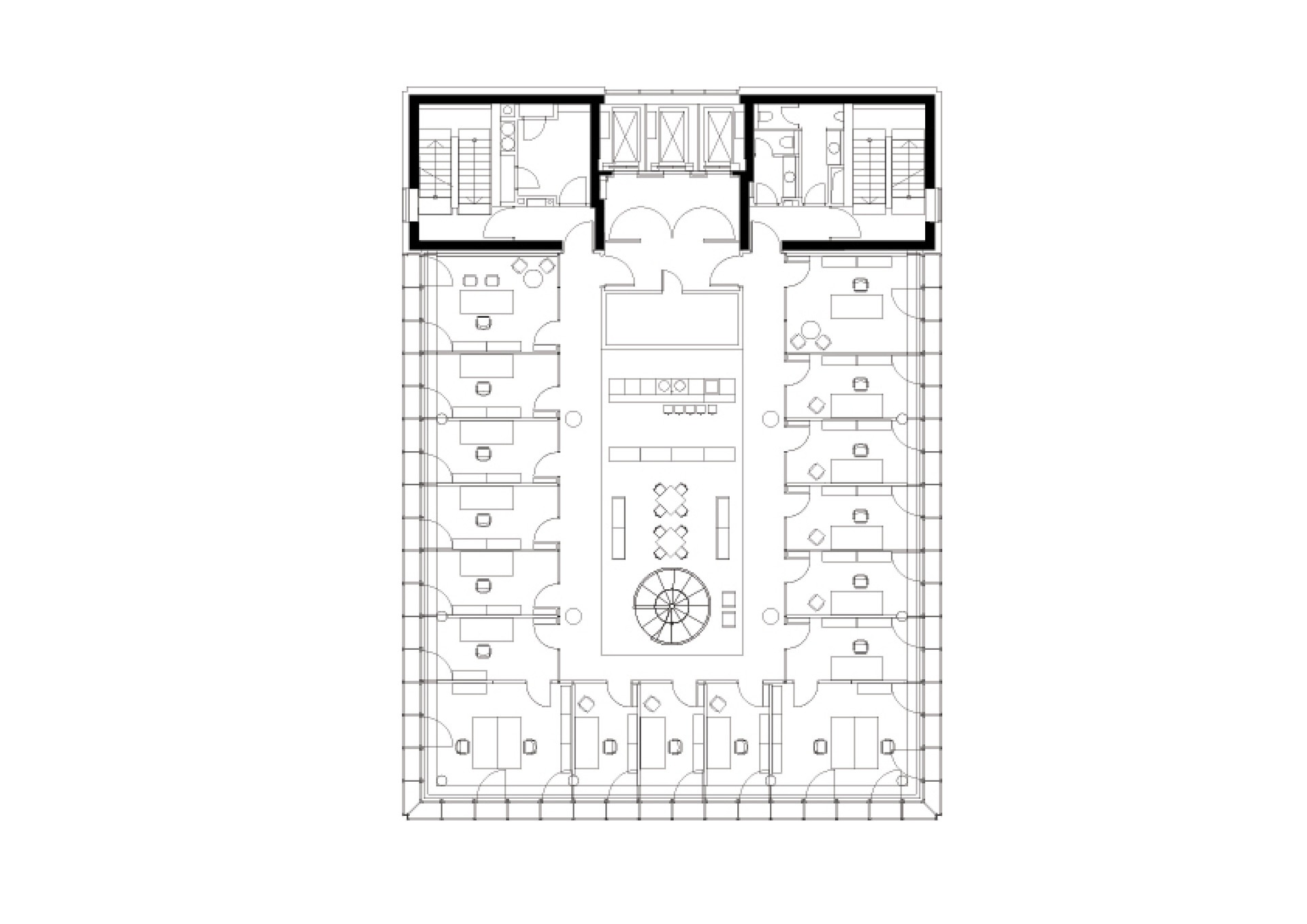
Fraunhofer-Haus

Innovation in application-oriented research is the fundamental principle of the Fraunhofer Society based in Munich. The 17-storey new building demonstrates transparency and communication in function and form – with glass and bright, naturally ventilated office rooms which enable the direct visual horizontal and vertical rapport with one another. Transparently-designed air spaces serve to condense place and space into a meeting point for communication and balance. The sound stress caused by the surrounding traffic meant that the requested noise protection in the Fraunhofer-Haus had to be carried out with a double-façade.

The primary facades are designed as a column and beam construction, the secondary facades as an elemented curtain wall. The space between the upper and lower story is closed so that there is an independent air belt around every floor. An active concrete core conditioning levels off the building’s inner stress. At night, the concrete core conditioning of the ceiling cools down the inside, a re-cooling system has been installed for this on the roof. Water acts as a heat carrier. The nocturnal air withdraws the heat from the water with ventilators and cooling lamellas. A sprinkler reservoir is used as a cold storage buffer: This allows the ceilings to be cooled most of the day exclusively with natural ambience cold. The Fraunhofer-Haus provides for high thermal comfort without active air conditioning.

Category
High-rise
Area
30 280 m²
Status
Completed
Client
Fraunhofer-Gesellschaft
Year
Location
Munich, DE

Collaboration Partners

Sailer Stepan und Partner, KBP Ingenieure, Müller-BBM, Gottfried und Anton Hansjakob Landschaftsarchitekten, G & G Planung, Roderick Beck Ingenieurbüro, Zilch + Müller Ingenieure GmbH, Fraunhofer-Institut für Solare Energiesysteme ISE, Fraunhofer-Institut für Bauphysik IBP, Kersken + Kirchner, Werner Sobek