Skip to main content
Munich

The SOURCE high-rise revitalization

The 22-storey high-rise on Baierbrunner Straße, located in Munich's Obersendling district on the southern edge of the city, will be redeveloped to become THE SOURCE, a state-of-the-art mixed-use complex.

The area is also known as the ‘Isar valley’, and was home to pioneering developments in microelectronics and information technology in the 1960s. The 80-meter-tall tower, “the most Southern skyscraper of Germany”, will be renovated and updated for multi-tenant office use.

A Munich landmark

The Munich landmark, designed by Hans Maurer, was completed in 1964 and functioned as headquarter building for Siemens until 2004. THE SOURCE is a concept for a mixed-use office complex that integrates office spaces, dedicated offices for start-ups, shops, a daycare, cafés and restaurants, a conference center and fitness.

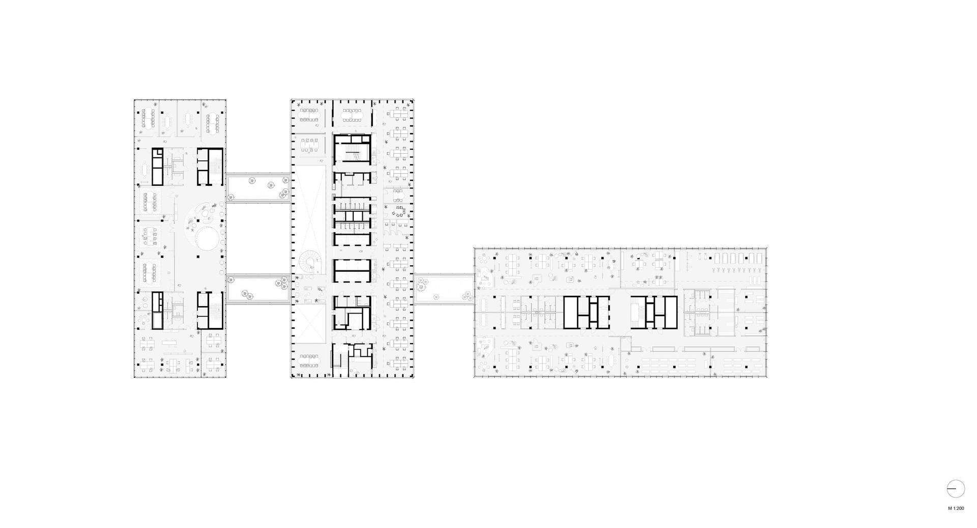
In addition to the existing tower, two lower buildings will be constructed on the site, placed to the north and south of the original building.

Preserved and future-proofed

The decision to conserve and repurpose the existing concrete tower, leaving the cores and structures untouched wherever possible, saves over 5,000 tons of carbon. The original façade has to be replaced to increase the energy efficiency of the building. The new façade references the original pattern, facilitates sun shading between two glass layers while maintaining the intake of fresh air from outside.

The building will be powered by geothermal and solar energy, with 3,000 square meters of photovoltaics integrated in the tower’s façade and along the roof edges of the south building. The top of the southern building will be covered in green, contributing to the biodiversity on the site.

An inspiring workplace

The high-rise building offers structurally suitable grids for standard office spaces as well as more flexible co-working environments. Up to four rental units per floor can be served by the two central access cores.

Across all three buildings, the ground floor is open to the public, connecting THE SOURCE with its urban environment, a mixed quarter with residential buildings for students and senior citizens that integrate within a blooming urban infrastructure.

The northern building will function as the main entrance to the complex, while the southern building is embedded in dense greenery. A sunken courtyard is designed as a terraced playscape for the daycare center.

City to the north, Alps to the south

The orientation of the high-rise tower – facing north with views of the city and south with sweeping vistas of the Alps – has been reflected in the interior concept: focus zones toward the south overlooking nature, and more active, open working zones on the northern side toward the city. The sky lounge at the top of the building will include a café and terrace open to all users of the building.

Category
Office
High-rise
Area
51 000 m²
Status
Current
Certification
LEED Platinum, WELL Platinum, Wired Score Platinum, Mobility Forward Platinum, Conformity with EU Taxonomy classification (envisaged)
Client
PG Baierbrunner Str. 54 S.à r.l.
Year
Awards
Global Human Settlement Award on Planning and Design 2024, Urban Design & Architecture Design Award 2024, German Design Award 2023
Location
Munich, DE

Collaboration Partners

igb Ingenieurgesellschaft Burgert mbH, Bartenbach LichtLabor, bwp Burggraf + Reiminger Beratende Ingenieure, KAUPA Ingenieure, INOVIS Ingenieure, Jappsen Ingenieure, PMI, realgrün Landschaftarchitekten, SODA Group, Werner Sobek