Skip to main content
Berlin

Robert-Koch-Institut

Im Neubau des Robert Koch-Instituts in Berlin-Wedding befindet sich ein Hochsicherheitslabor der Kategorie S4. Hier erforschen Wissenschaftler hochpathogene Erreger wie zum Beispiel Ebola- oder Lassaviren.

Die Forschungsmaschine

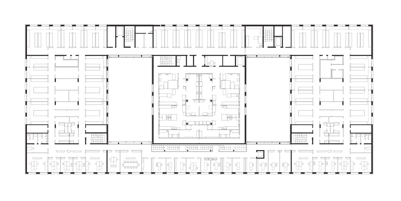
Die aerosol- und luftdichten Räume sind durch mehrstufige Sicherheitssysteme abgeschirmt. Sie liegen in einem würfelförmigen Betonbaukörper, der das Zentrum des neuen Forschungsgebäudes bildet.

Innenhöfe und mehrstufige Schleusen separieren das Labor der höchsten Sicherheitskategorie vom übrigen Forschungsgebäude. Die Sicherheitstechnik für das S4-Labor befindet sich in den Geschossen über und unter seinen Räumen in der zweiten Etage. Sie garantiert unter anderem, dass weder Luft noch Abwasser ungefiltert nach außen dringen kann.

Ein Hochsicherheitslabor mitten in Berlin

„Das neue Labor stärkt den Forschungsstandort Berlin und ist mit der Nachbarschaft zur Sonderisolierstation des Charité-Campus Virchow-Klinikum zudem ideal gelegen.“

-Prof. Dr. Lothar H. Wieler

Insgesamt stellt das neue Forschungsgebäude des Robert Koch-Instituts 22.000 m² Fläche für Labore sowie Büros und Besprechungsräume zur Verfügung. In unmittelbarer Nähe zum Virchow Klinikum sowie zur Sonderisolierstation der Charité und zum Deutschen Herzzentrum ist der Neubau ein wesentlicher Baustein für die Infrastruktur des Robert Koch-Instituts. Er konzentriert die Berliner Einrichtungen des renommierten Bundesinstituts am Standort Seestraße.

Die rote Ziegelfassade des langgestreckten Quaders greift das Erscheinungsbild der umliegenden Nachbargebäude auf. Mit einem zentralen Eingangsbereich an der Längsseite  orientiert sich das Gebäude zum angrenzenden Campus. Die zweigeschossige Erschließungshalle bildet ein großzügiges Entrée, das sich mit durchgängiger Verglasung nach außen öffnet und gleichzeitig den Blick auf die beiden seitlichen Innenhöfe freigibt, zwischen denen der abgeschirmte Baukörper des Hochsicherheitslabors liegt.

Die Büro- und Besprechungsräume des Instituts orientieren sich Richtung Westen zum Campus. An den Innenhöfen und entlang der Außenseiten des Baukörpers reihen sich die Standardlabore auf, ergänzt durch innenliegende Servicebereiche.

Kategorie
Science
Area
22 150 m²
Status
Completed
Client
Bundesamt für Bauwesen und Raumordnung
Year
Location
Berlin, DE

Collaboration Partners

Krone Ingenieure, Weber & Partner, eretec, Müller-BBM, Priedemann Fassadenberatung, HHP Süd, Landschaft planen + bauen, DEKRA, Sehlhoff, SIX Engineers, b.i.g. bechtold INGENIEURGESELLSCHAFT