Skip to main content
Darmstadt

Merck Life Science Advanced Research Center

Mit dem Merck Life Science Advanced Research Center (LS ARC) entsteht ein neues, von HENN entwickeltes Forschungsgebäude für die globale Konzernzentrale von Merck in Darmstadt. Im Neubau bündelt Merck die Forschung an Schlüsseltechnologien des Unternehmensbereichs Life Science. Dazu gehören beispielsweise Rohstoffe und Verfahren für die Erforschung und Herstellung von Antikörpern, rekombinanten Proteinen oder viralen Vektoren. Weiter forscht das Unternehmen hier auch an Zellkulturmedien und Hilfsmitteln für die Formulierung und Aufreinigung von Medikamenten sowie an digitalen Referenzmaterialien. Außerdem entwickeln die Forschenden die analytische Chromatographie weiter. Auch die Forschung entlang der mRNA-Wertschöpfungskette wird hier beheimatet sein.

Der Innenstadt von Darmstadt zugewandt, wird das Gebäude ein zentraler Baustein des neuen Forschungs- und Entwicklungscampus. Der Campus entsteht entlang der sogenannten Innovation Mile, die südlich mit dem ebenfalls von HENN entworfenen Innovation Center am Emanuel-Merck-Platz beginnt.

Das Labor der Zukunft

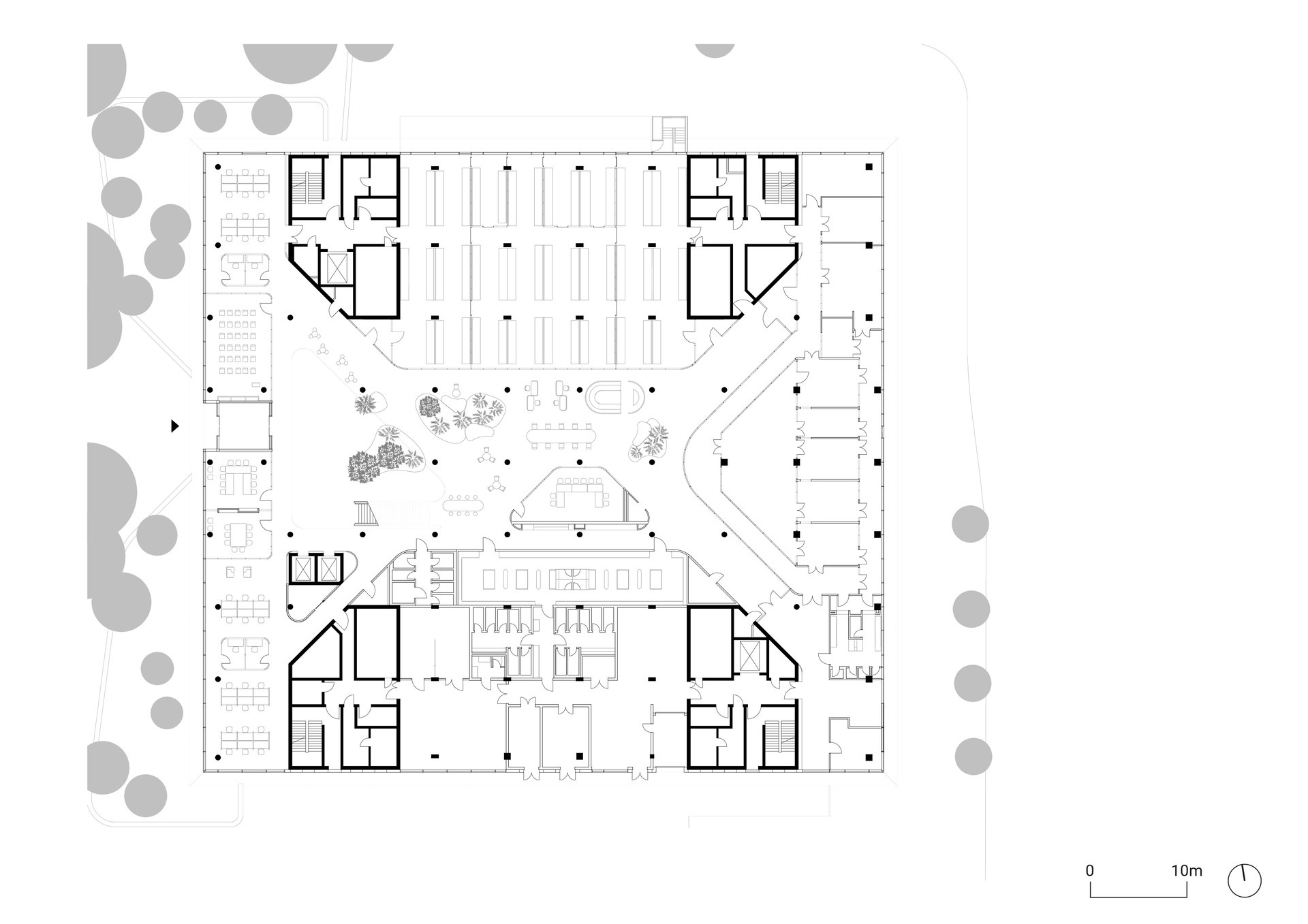
Das neue Merck Life Science Advanced Research Center hat weltweit Modellcharakter für das Labor der Zukunft. Es entsteht ein Ort, an dem Labore, Büros und Kommunikationsflächen zu einer großen, zusammenhängenden Wissenswelt verwebt werden. Indem die flexibel unterteilbaren Räume horizontal und vertikal geschossübergreifend vernetzt sind, aktiviert das Gebäude die Synergien und Potenziale aus den Arbeitsprozessen. 

Der kompakte Kubus öffnet sich sowohl zum Campus als auch zur Stadt hin durch zwei tief eingeschnittene Atrien, die von gestaffelten, auskragenden Ebenen der oberen Geschosse umschlossen werden. Durch die gläsernen Decken der Atrien fällt Tageslicht bis in die Gebäudemitte. Verschiedene Pflanzenarten, die im benachbarten Odenwald heimisch sind, darunter bis zu neun Meter hohe Bäume, werden mitsamt Erdreich in das Gebäude integriert und verwandeln die Atrien in Orte der Erholung. 

Die verglaste Fassade öffnet ihre vorgesetzte Lamellenstruktur vor den Atrien und gibt so den Blick ins Innere frei. In einem Schaulabor im Erdgeschoss, dem Technikum, gibt Merck einen Einblick in die Forschungsarbeit. 

Strukturmodell, Maßstab 1:200
Massenmodelle, Maßstab 1:500
Eine Wissenswelt entfaltet sich

Auf den offenen Grundrissen der oberen Geschosse verbinden sich Labore und Büros zu einer zusammenhängenden Arbeitswelt. Die Laborflächen befinden sich gegenüberliegend an zwei Außenseiten des Gebäudes. Dazwischen spannt sich die Wissenswelt auf – mit Büroflächen und gemeinschaftlich genutzten Kommunikationsbereichen für fachlichen und informellen Austausch zwischen den Mitarbeitenden

Indem sich der Neubau mit gläsernen Wänden nach innen und außen öffnet, entstehen Blickbeziehungen zwischen allen Arbeitsbereichen, aber auch hinaus über den Campus. Die Interiors schaffen mit einer reduzierten Farbpalette eine angenehme Atmosphäre. Farbige Glaswände betonen die Laborbereiche. 

Nachhaltig gebaut

Auskragende Geschossplatten an der Südfassade und zurückspringende Terrassen im Norden sowie die außenliegenden Lamellen aus hellem, perforiertem Metall sorgen für eine Verschattung der Geschossflächen. Ihre Dichte und Orientierung ist nach der Sonne ausgerichtet und leistet einen vollständigen Sonnenschutz für das Gebäude. 

Auf dem Dach angebrachte Photovoltaikanlagen erzeugen Energie, während die Begrünung CO2 in Sauerstoff umwandelt und Feinstaub aus der Luft aufnimmt. 

Das Merck Life Science Advanced Research Center ist ein wichtiger Schritt hin zu einem zentralen Forschungs- und Entwicklungscampus an der Merck-Konzernzentrale und stärkt Darmstadt als wichtigen Standort für Life-Science-Technologien.