Skip to main content
Darmstadt

Merck Innovation Center

Der Standort Merck in Darmstadt soll sich schrittweise von einem Produktionswerk zu einem Technologie- und Wissenscampus entwickeln. Kernstück dieser Veränderung ist das Innovation Center mit einer neuen Arbeitswelt. Ein dynamisches Raumkontinuum unterscheidet und verbindet die einzelnen Arbeitsorte zu einem räumlichen Netzwerk.

Vom Werk zum Netzwerk

Das Gebäude ist gegenüber der Frankfurter Straße zurückgesetzt und gibt so einen öffentlichen Platz frei, den Emanuel-Merck-Platz. Die Orthogonalität des Baukörpers entwickelt sich aus dem Kontext der angrenzenden Gebäude heraus und steht im Kontrast zu seinem bewegten Innenleben.

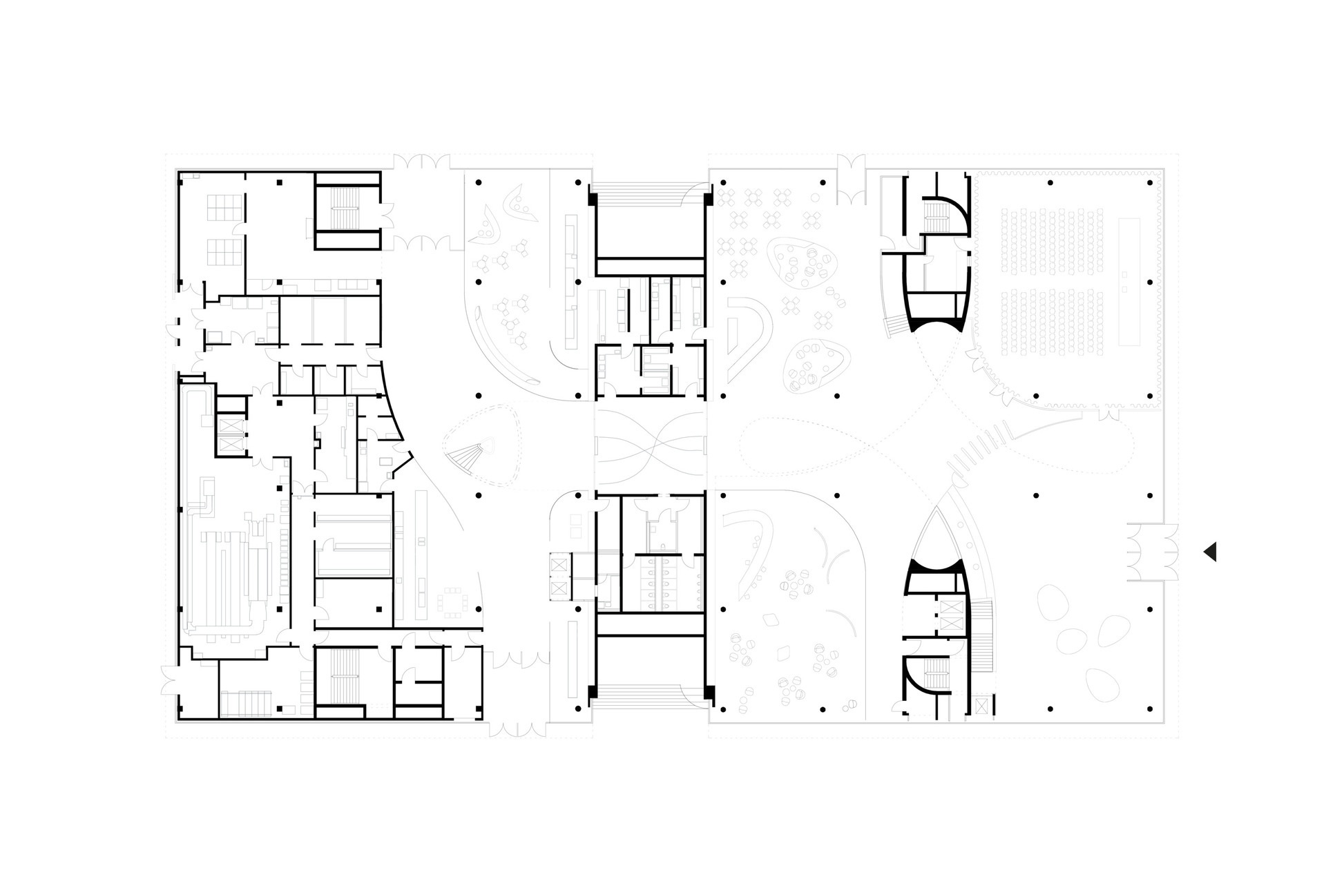
Im Gebäudeinneren entfaltet sich ein kontinuierlich fließendes Raumgefüge. Brückenartige Verbindungen spannen sich zwischen den ovalen Kernen diagonal durch den Raum und verbinden die einzelnen Arbeitsflächen. Treppen, Rampen und Flächen schrauben sich in die Höhe. Die Wege von einer Arbeitsgruppe zur anderen, von einer Ebene zur nächsten werden nahezu unbemerkt und unbeschwert bewältigt.

Die sich kreuzenden Brücken, die das Zentrum des Gebäudes verdichten und die Raumhöhe von sechs Metern über den Arbeitsplätzen auf drei Meter verringern, scheinen zu schweben. Die Lasten werden von Stützen entlang der Fassaden und nur vier Innenstützen aufgenommen. Durch eine hochpolierte Edelstahlhülle werden die Stützen nahezu entmaterialisiert.

Auf jeder Ebene befinden sich zwei Arbeitsflächen, die sich diagonal gegenüberliegen. Jede Arbeitsfläche ist für eine Projektgruppe aus externen und internen Mitarbeitern vorgesehen, die an zukünftigen Innovationen temporär und projektbezogen zusammenarbeiten. Konzentrations- und Meetingräume sind entlang der Fassade und auf Mezzaninen angeordnet. Im Erdgeschoss befindet sich ein Café, eine Lounge und ein Auditorium; im ersten Obergeschoss eine Bibliothek, im obersten Geschoss eine Werkstatt.

Eine Stahlbetonverbundkonstruktion mit Spannweiten bis zu 20 Metern ermöglicht stützenfreie Arbeitsflächen. Der Fassade sind offene, vertikale Außenlamellen in unterschiedlichen Winkelstellungen vorgesetzt, wodurch sich eine dynamische Außenwirkung ergibt und die Doppelgeschossigkeit der Innenräume von außen ablesbar wird. Die allseitig transparente Fassade und die hochschallabsorbierenden Decken gewährleisten hervorragende Arbeitsbedingungen hinsichtlich Tageslicht und Akustik.

Des Weiteren sind im Innovation Center neue Produkte und Techniken von Merck bei der Beleuchtung, den Beschichtungen und im Oberlicht verbaut. Zur Anwendung kamen neueste OLED-Technologie in der Kunstinstallation Light Cloud sowie der Bildschirminstallation Media Wall.

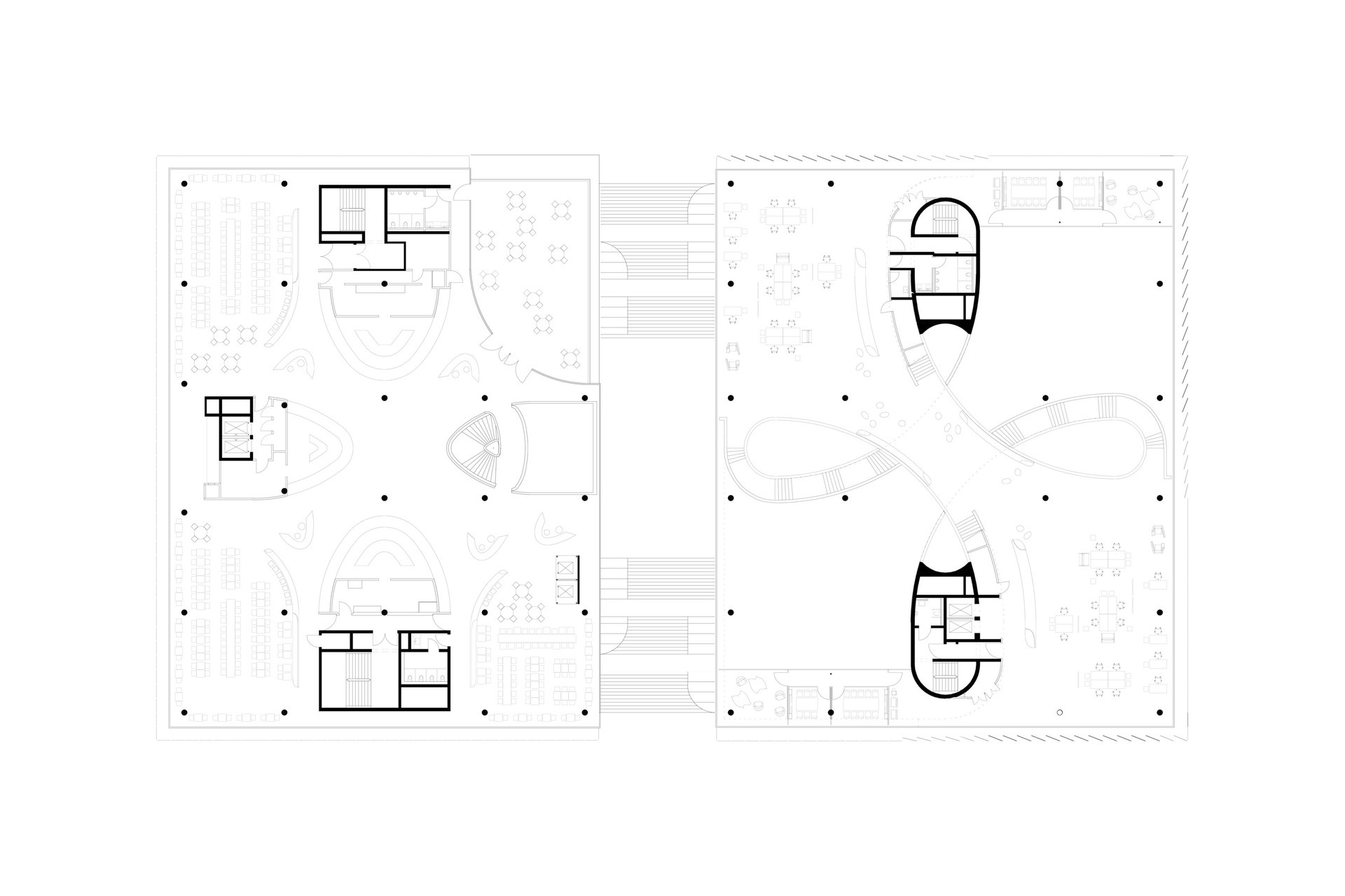
Über eine Freitreppe ist das Innovation Center mit dem Mitarbeiterrestaurant verbunden, das die geschwungene und fließende Formensprache des Innovation Center aufnimmt. Das Mitarbeiterrestaurant hat im Erdgeschoß einen Food Court und auf zwei Obergeschossen das Restaurant. Gewendelte Treppen, ovale Tresen, verdichteter Raum in der Mitte des Gebäudes und geweiteter, offener Raum in den Ecken erinnern an das Innovation Center.

Kategorie
Office
Area
21 950 m²
Status
Completed
Certification
LEED Platinum 2018
Client
Merck KGaA
Year
Location

Collaboration Partners

Bollinger + Grohmann Ingenieure, ZWP Ingenieur-AG, Müller-BBM, KFE – Kucharzak Fassaden Engineering, Lumen³, Topotek 1, Ingenieurbüro Felka-Hoffmann, Atelier Loidl, Ingenieurgruppe Walter