Skip to main content
Berlin

Zalando Hauptsitz

Es begann 2008 als Wohngemeinschaft in Berlin mit einer Idee. Zehn Jahre später – und Zalando war zum größten Modeversandhändler Europas gewachsen. So einheitlich die Marke digital auftrat, so verteilt waren die Abteilungen über die ganze Stadt. Ein neues, ein besonderes Gebäude sollte her. Eines, das den Geist des Start-ups atmet. Eines, das flexibel bleibt und alle Gewerke vereint. Und eines, das zugleich die Stadt prägt. HENN gab dieser Vision eine Gestalt.

Das doppelte X

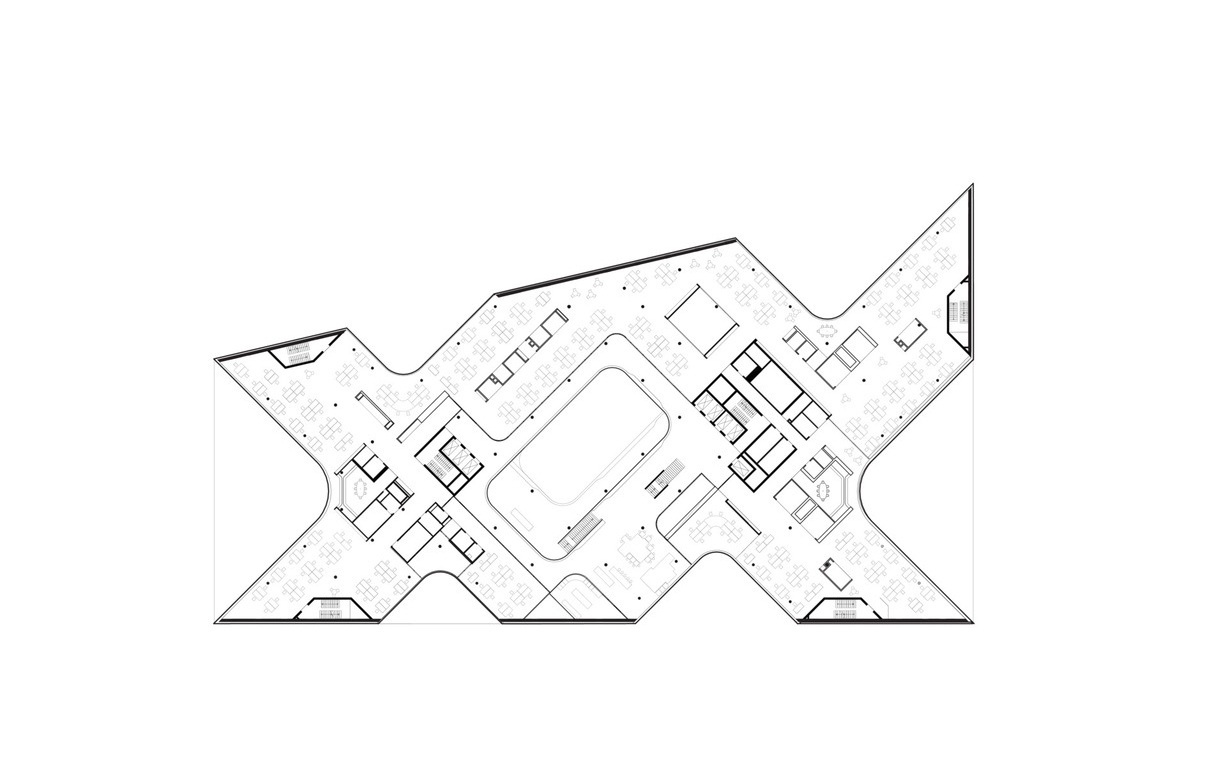
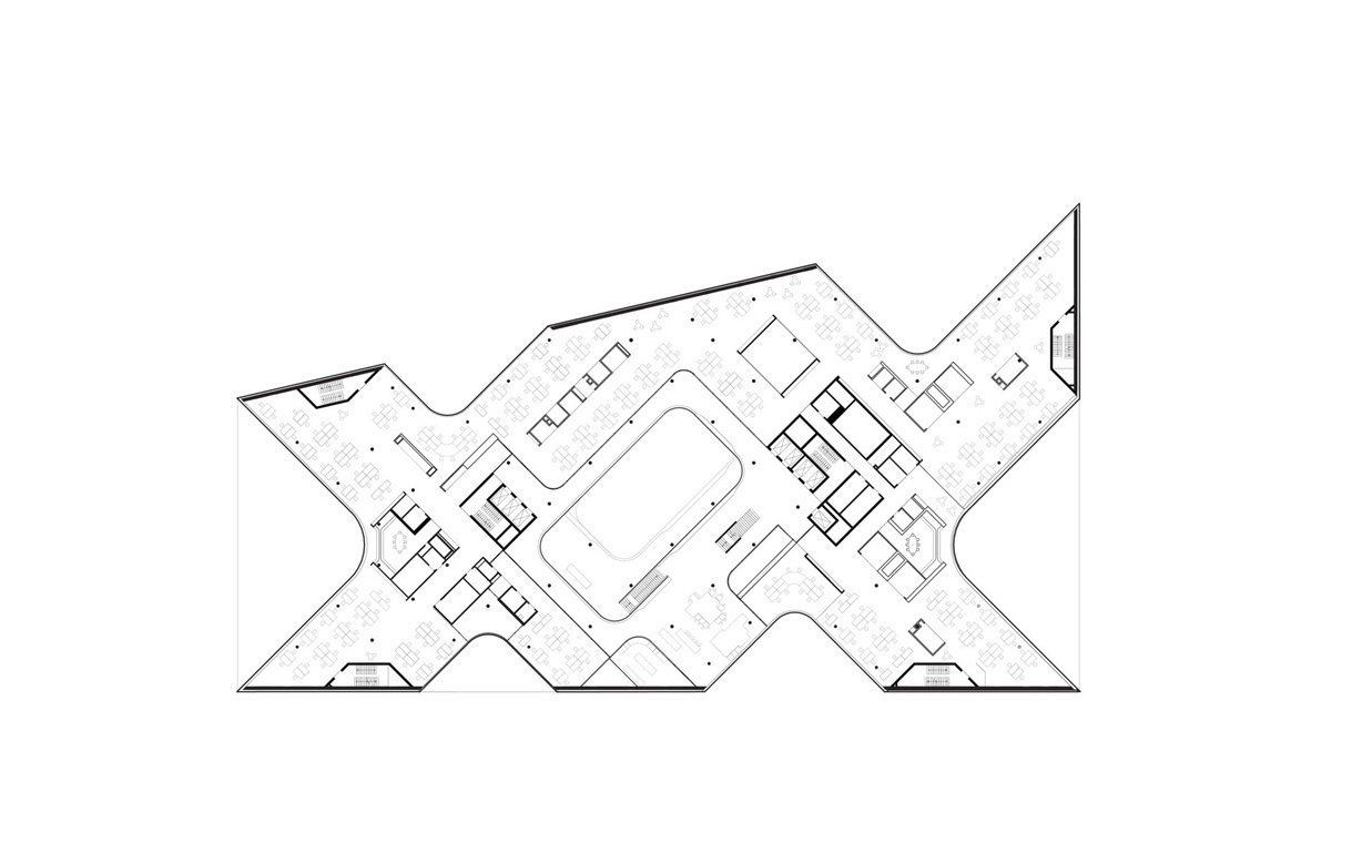
Das neue Zalando Hauptquartier besteht aus einem Ensemble aus drei Neubauten, die das Herzstück des Unternehmenscampus in Berlin-Friedrichshain, am neuen Standort in Nachbarschaft zur „Mercedes-Benz-Arena“ und der East Side Gallery, bilden. Anstelle eines geschlossenen Areals setzen die siebengeschossigen Volumen mit insgesamt rund 43.000 m² Bürofläche einen markanten Punkt, der die Unternehmensidentität im Stadtbild offen und transparent in Erscheinung treten lässt.

Die umlaufende Glashülle, die die Bauvolumen mit ihren Einschnitten wie eine Klammer zusammenfasst, ist elementarer Bestandteil des Entwurfs. Denn mit der Reinterpretation des Berliner Blocks durch die Drehung der Gebäudegrundrisse diagonal zum Bebauungsplan, konnte eine gestalterische Lösung gefunden werden das Gebäude zur Stadt zu öffnen.

So rücken die Innenhöfe an die Außenkanten der Grundstücke, wodurch Übergänge zwischen den Büros und dem öffentlichen Raum entstehen, die durch die Kombination aus transparenten und transluzenten Fassaden weitere Ein- und Ausblicke gewähren.

Das zentrale Atrium, das in einer Palette aus warmem Holz, kühlem Beton und Neonröhren gestaltet ist, ist ein visuelles Fest aus dynamischen Linien, Durchblicken und Materialkontrasten.

Im Zusammenschluss mit dem angrenzenden Auditorium entsteht ein Raumkontinuum über mehrere Etagen, was die Flexibilität der Nutzungen erhöht. Konferenz- und Schulungszonen schließen sich neben einem Café und der Kantine daran an.

Der lebendige Marktplatz ist nicht zufällig die Analogie zur digitalen Netzwerkgesellschaft. Von Küchen, Sporträumen bis Kitaflächen – hier finden die Nutzer des Gebäudes alles, was flexibles Leben und Arbeiten möglich und angenehm macht.

Die spezielle räumliche Konfiguration des Innenraumes ergibt durch die Verschneidung der verschiedenen Ebenen mit dem Luftraum reizvolle Raumsituationen. Ungleichmäßig verteilt ergeben sich so mehrgeschossige Lufträume oder intimere Rückzugsbereiche, die alle ein Ziel verfolgen: die Durchmischung der Arbeitszonen zugunsten einer agilen, kommunikativen Atmosphäre.

Schon im Wettbewerb wurde gefordert, dass die Architektur eine Bühne für eine vielfältige „Besetzung“ und wandelbare Nutzung des Gebäudes schaffen muss. Nicht das Büro oder der einzelne Arbeitsplatz ist das raumbildende Kriterium, sondern der Weg dorthin ist entscheidend.

In den sogenannten Livingrooms wird die soziale Interaktion durch Begegnungsorte in vielen Ausprägungen gefördert: Sitzlandschaften in Coworking-Optik, Kitchenettes mit Holztischen und Barhockern, eine Balustrade mit Platz für den Laptop und einen freien Blick durch das ganze Atrium. Der Austausch und die Vernetzung zwischen diesen Gemeinschaftsbereichen in den einzelnen Geschossen wird durch Freitreppen zusätzlich gefördert.

Bürowelten mit Zukunft bieten flexibel nutzbare Flächen, die Kreativität und Kommunikation fördern. Die räumliche Organisation der Büros in den Obergeschossen ist gezielt darauf ausgerichtet, sowohl mit Konzentrations- als auch Interaktionszonen auf die wechselnden Bedürfnisse der Mitarbeiter und auf differenzierte Nutzungsoptionen einzugehen. Die enorme Gebäudetiefe wird durch die geschickte Schichtung der Flächenangebote aufgebrochen. In Form einer Doppelhelix lagern sich verschiedene Funktionen von der Lobby bis zur Dachterrasse rund um das Atrium an.

Kategorie
Office
Area
59 000 m²
Status
Completed
Certification
DGNB Gold 2019
Client
Zalando SE
Year
Auszeichnungen
ICONIC Award 2020
Location

Collaboration Partners

hhpberlin, Müller-BBM, KINZO, Bartenbach LichtLabor, Atelier Loidl, BuroHappold Engineering, Werner Sobek, PMI