Skip to main content
Hannover

NIFE

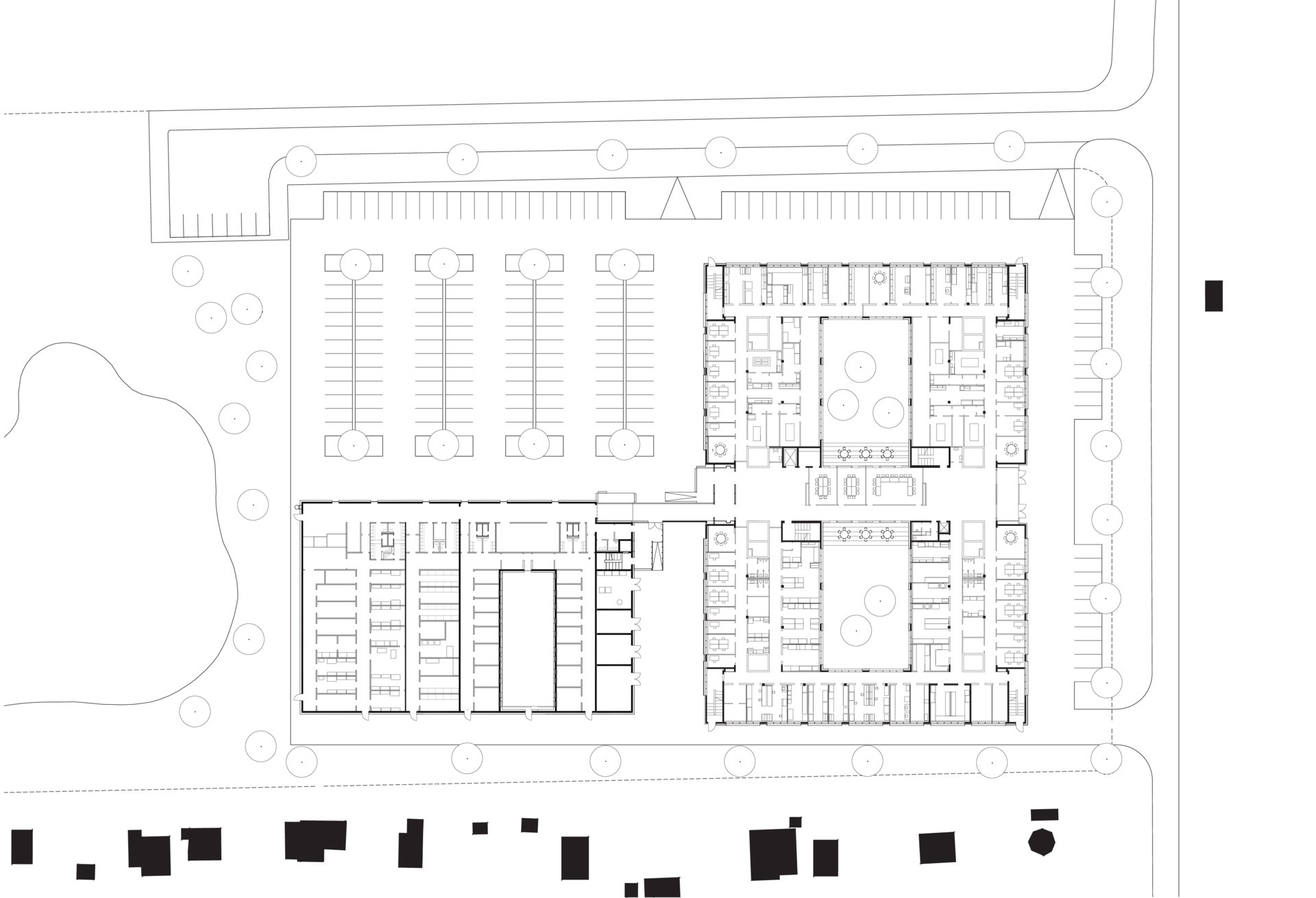
Im Niedersächsischen Zentrum für Biomedizintechnik und Implantatforschung in Hannover (NIFE) befinden sich Büros und Laborräume für vier wissenschaftliche Einrichtungen zur Entwicklung medizinischer Implantate in den Bereichen Hören, Neurochirurgie, Herz, Kreislauf, Zahn und Skelettsystem.
Die beiden Neubauten am Rand des Campusgeländes der Medizinischen Hochschule Hannover stellen 17.400 m² Fläche für die vernetzten Arbeitsplätze von bis zu 300 Mitarbeitern bereit. Das dreigeschossige Laborgebäude am Stadtfelddamm und das rückwärtige Tierhaus mit zwei Geschossen sind durch einen Gang miteinander verbunden. Prägendes Element des Entwurfs ist eine durchgängige Magistrale. Die zentrale Erschließungs- und Versorgungsachse betont den Eingangsbereich an der Straßenseite und ermöglicht den Nutzern eine einfache Orientierung im Gebäude. An sie schließen zwei Lichthöfe und die vier Nutzungsbereiche an. Kommunikationsflächen entlang der Achse unterstützen den Wissens-austausch und fördern die transdisziplinäre Zusammenarbeit. Zusätzliche öffentliche Bereiche bietet die zweigeschossige Halle in der ersten Etage über der Magistrale. Die verglasten Besprechungs- und Aufenthaltsräume in diesem Bereich schaffen ein kommunikatives Umfeld, das von allen Forschungsgruppen flexibel genutzt werden kann. Um die Lichthöfe und entlang der Außenfassaden gruppieren sich auf den einzelnen Geschossen die Labor- und Büroarbeitsplätze. Nach außen präsentiert sich das Forschungs- und Entwicklungszentrum mit einer dunklen Lochfassade, die mit Faserzementplatten verkleidet ist. Der Neubau ist ein maßgeblicher Baustein für das Exzellenzprofil der Stadt Hannover als Wissenschaftsstandort im Bereich der Medizintechnik.

+
1/10
Kategorie
Science
Area
17 400 m²
Status
Completed
Client
Staatliches Baumanagement Hannover
Year
Location
Hannover, DE

Collaboration Partners

Assmann Beraten+Planen, Inros Lackner, Teamplan, ZWP Ingenieur-AG, iPb – Ingenieurbüro Planung Blei, IBB - Ingenieurbüro für Brandschutz von Bauarten, SuP Ingenieure, eretec