Skip to main content
München

iCampus Rhenania

Im neuen Werksviertel im Münchner Osten, wo einst Kartoffelpüree, Motorräder und Herrenanzüge hergestellt wurden und später Nachtschwärmer im Kunstpark Ost und der Kultfabrik unterwegs waren, entsteht ein neues Stadtquartier mit hoher sozialer Vielfalt. Prominent platziert mit Perspektive auf den Ostbahnhof lädt der markante Bürokomplex iCampus Rhenania in das Viertel ein.

Die zwei Neubauten mit schwarzer Fassade und loftartigen Fenstern, die Bezug auf das industrielle Erbe des Ortes nehmen, gruppieren sich um eine denkmalgeschützte Villa – das ehemalige Verwaltungsgebäude der Speditions- und Umzugsfirma Rhenania, das in den 1920er Jahren entstanden ist.

Urban Village

Dem Community-Gedanken folgend ist die Campusplaza im Zentrum des Ensembles wie ein „Urban Village“ gestaltet. Außensitzplätze verschiedener Restaurants und Cafés, lange Holzbänke unter Bäumen und begrünte Dachterrassen schaffen einen Ort, an dem man gern arbeitet und seine Freizeit verbringt.

Flexible Arbeitswelten

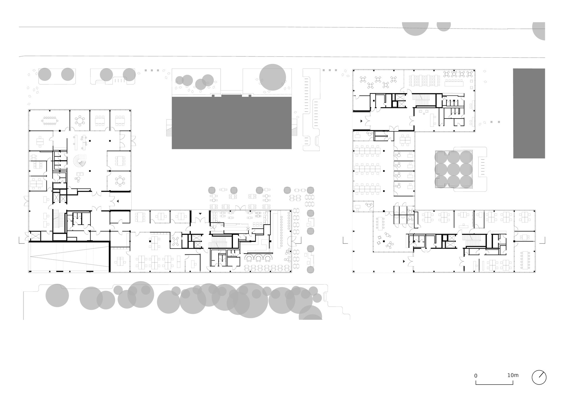
In Zeiten von agilen Teams und Homeoffice bietet das Gebäudeensemble ein Höchstmaß an Flexibilität: Struktur und Lage der Erschließungskerne ermöglichen es, die Aufteilung der Geschosse zu verändern, indem Module einzeln genutzt oder gekoppelt werden können.

So steht der iCampus Rhenania Unternehmen unterschiedlicher Größe und mit verschiedenen Bürokonzepten offen. Ökologisch nachhaltig und technisch innovativ sind die mit Bauteilaktivierung ausgestatteten „Innogration Decken“, die die Räume effektiv mit Fernwärme und -kälte versorgen.

Alt und Neu

Das Ensemble fügt sich sensibel in den städtebaulichen Kontext ein. Die kleinteilige Bebauung entlang der Friedenstraße nimmt die Maßstäblichkeit der gegensätzlich erscheinenden neoklassizistischen Villa auf und schafft einen selbstverständlichen Übergang zur weiteren Bebauung des iCampus und dem gesamten umgebenden Werksviertel.

Auf dem Nachbargrundstück befindet sich das ebenfalls von R&S Immobilienmanagement entwickelte House of Communication für die Serviceplan Group. Dessen drei Atriumbauten hat HENN über Brücken verbunden und das Gestaltungskonzept für die Innenräume entwickelt.

Offene Pergolen auf den Dächern vermitteln zwischen dem flachen Gelände zum Bahnhof hin und den ansteigenden Höhen der vier- bis sechsgeschossigen Bürobauten in Richtung Campuszentrum. Um die Perspektive auf die Villa zu öffnen und einladende Wege ins Innere zu gestalten, ist das Gebäude an der Friedenstraße etwas zurückversetzt.

Der schwarze Farbton der Fassade wurde eigens in einem schweizerischen Labor entwickelt. Die darin enthaltenen gelben und goldenen Eisenglimmeranteile verleihen den Gebäuden Wärme, Freundlichkeit und je nach Sonneneinstrahlung eine schimmernde Tiefe.

Vier Haupteingänge mit zur Campusplaza ausgerichteten Foyers führen in die Innenräume. Dort kontrastiert der grobe, unbehandelte Beton der Wände und Treppenhäuser mit dem warmen Messing der Briefkästen, das sich in Türen, Aufzügen und Teeküchen wiederfindet.

Das spannungsreiche Ensemble aus Alt und Neu transformiert das Areal mit der Idee eines „Urban Village“ in einen innovativen Ort des Neuen Arbeitens und Lebens im Münchner Osten.

Kategorie
Office
Area
30 000 m²
Status
Completed
Client
R&S Immobilienmanagement GmbH
Year
Location

Collaboration Partners

Schwab.engineers (Project controlling), Ametsbichler + Lehr (structural framework), Büro Uebele (high-level guidance systems), Drees & Sommer (construction management), gevas humberg & partner (circulation systems design), IBF Ingenieure (building services), iPb Ingenieurbüro Planung Blei (façade design), PMI (building physics), VOGT/BL9 (landscaping)