Skip to main content
München

House of Communication

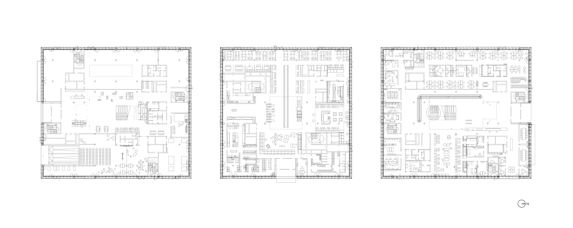
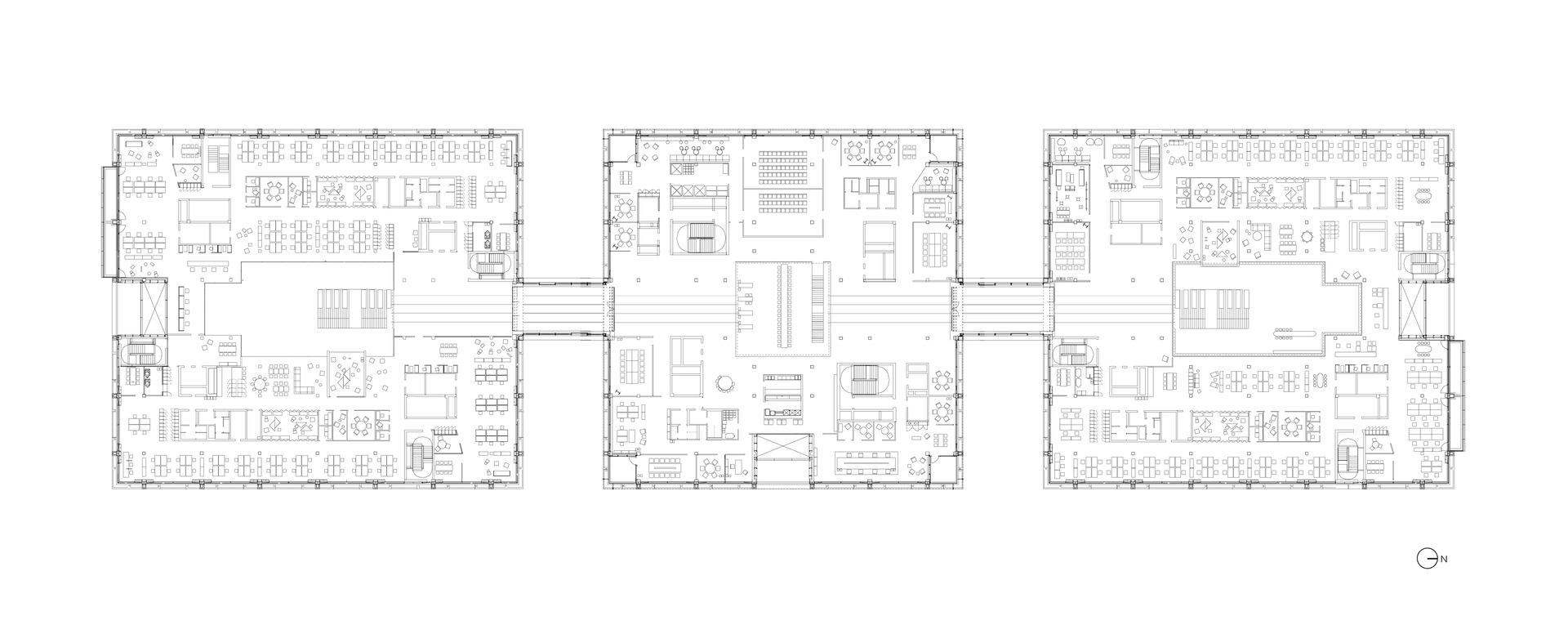
Mit dem Interior Design für das neue House of Communication schafft HENN eine verbindende visuelle Identität für die Serviceplan Group, die weltweit größte inhabergeführte Agenturgruppe für innovative Kommunikation, und übersetzt ihre integrierte Arbeitsweise in Raum. Auf dem von R&S Immobilienmanagement neu entwickelten iCampus im Münchner Werksviertel hat HENN Interior für das House of Communication drei zuvor separat geplante Gebäude über Brücken verbunden und das Gestaltungskonzept für die Innenräume entwickelt.

Menschen und Ideen vernetzen

In der Serviceplan Group arbeiten in München rund 1 700 Menschen in einem agilen Netzwerk von Agenturen, das vom ständigen Austausch von Ideen und Mitarbeitenden lebt. Das House of Communication vereint die rund 40 Agenturen unter einem Dach.

Mit gemeinsamen Bereichen für fokussiertes und kollaboratives Arbeiten, mit Orten um sich sozial zu vernetzen, gemeinsam zu essen oder auf der Dachterrasse zu entspannen.

Eine neue Art zu arbeiten

In den zum Atrium hin offenen Büroetagen hat HENN Interior Orte der Begegnung für unterschiedliche Arbeitssituationen definiert, die Menschen virtuell, aber insbesondere wieder persönlich zusammenbringen: An den lebendigsten Teil, rund um die innenliegenden Atrien, schließen sich großzügige Teeküchen und Räume für kollaboratives Arbeiten, informelle Meetings und Präsentationen an. Ganz außen, geschützt durch die Wände der Meetingräume, schließen sich die ruhigeren Arbeitsbereiche der einzelnen Agenturen an – sowie Fokusräume, Telefon- und Videomeetingboxen. Obwohl die Etagen weitgehend ohne Trennwände auskommen, sind kommunikative Bereiche und fokussiertes Arbeiten in nächster Nähe möglich – dank schallabsorbierender Wand- und Deckenpaneele sowie schwerer Filzvorhänge.

Wie ein maßgeschneiderter Anzug

Klare Linien und eine monochrome Farbpalette in Schwarz, Weiß und Grau bilden die verbindende Basis des Gestaltungskonzepts über alle Bereiche und Agenturen hinweg. Dabei erzeugen Materialien mit industriellem Charakter und unbehandelte Oberflächen – etwa roher Stahl, Gitterroste und gebeiztes Holz – eine zwanglose und informelle Atmosphäre. Statement pieces in leuchtenden Farben und mit reflektierenden Oberflächen ergänzen das Konzept zu einer neuen visuellen Identität für Serviceplan.

Die Idee von Kommunikation und Integration nimmt in Form von übergroßen Möbeln, die als modifizierte Einzelstücke hergestellt wurden, auch funktional Gestalt an. So finden etwa auf einem 30 Meter langen, leuchtend roten Sofa im Eingangsbereich 100 Menschen gleichzeitig Platz – 80 an der langen Holztafel in der Kantine. 

Gemacht, um Inspiration zu wecken

Einige der charakteristischen Möbel und Textilien hat HENN Interior zusammen mit kleinen Unternehmen aus der Region eigens für das House of Communication entwickelt. Der robuste und minimalistische Polizeistuhl, mit dem in den 1950er Jahren die Polizeidienststellen des Landes ausgestattet waren, wurde neu aufgelegt und zu einer Möbelserie weiterentwickelt. Ein neu entworfenes flexibles Regalsystem dient auch als multifunktionaler Raumtrenner. 

Die textilen Wandbespannungen mit einem Quadratraster in verschiedenen Farben und Größen sind eine Reverenz an die klare geometrische Architektur der Fassade. Exklusiv für die Signaletik im Haus hat das Büro Uebele eine eigene Schriftart für Serviceplan entwickelt. Sie wird überall im Haus eingesetzt – zur Orientierung and Wänden und Stützen, aber auch als typographisches Designelement in Übergröße in der zentralen Lichtinstallation.

Kategorie
Office
Interior
Area
40 000 m²
Status
Completed
Client
Serviceplan Group SE & Co. KG
Year
Auszeichnungen
ICONIC Award Best of Best 2023, THE PLAN AWARD 2023, AZ Award 2023
Location

Collaboration Partners

IGW Ingenieurgruppe Walter, Lumen³, officeMEDIA visuelle medientechnik, Planungsgruppe Dröge Baade Drescher, HL-Technik AG, Apropos Licht, GKR Hydrokulturen, Büro Uebele, Combine Consulting Gmbh, Bartenbach LichtLabor, Drees & Sommer, Communicate Consult, R&S Immobilienmanagement GmbH, RKW Architektur +, KAAN Architecten