Skip to main content
Karlsruhe

Gläserne Softwarefabrik

Der Leitgedanke einer „Gläsernen Softwarefabrik“ lag dem neuen Bürogebäude eines Softwareherstellers in Karlsruhe zugrunde. Dieser wird nicht nur in der äußeren Erscheinung des Neubaus zum Ausdruck gebracht, sondern konsequent in der Gebäudestruktur und inneren Organisation fortgeführt.

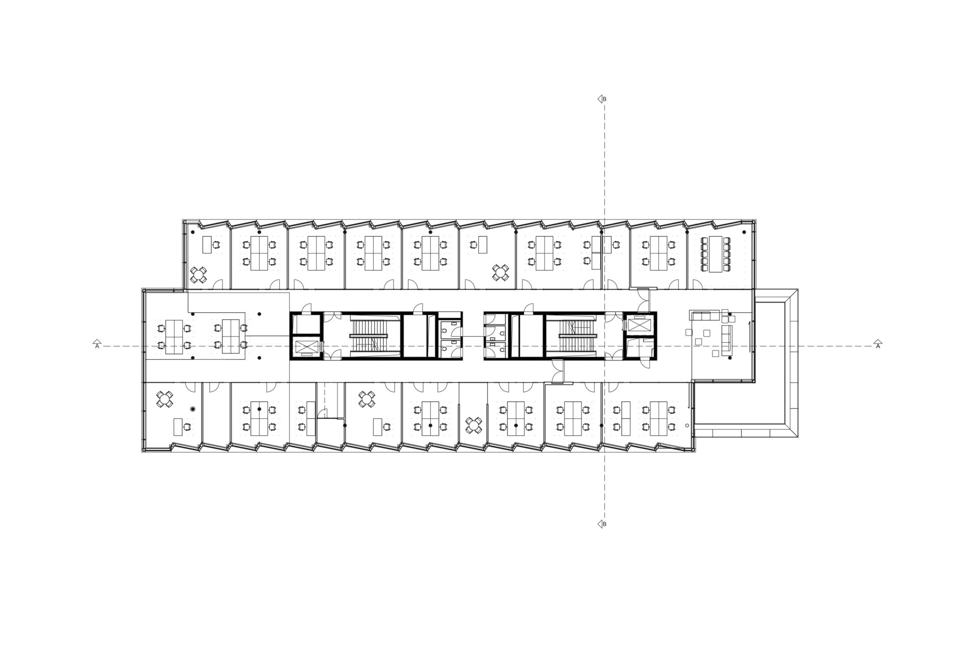
Drei ineinander geschobene und leicht versetzte Volumen bilden zahlreiche Terrassen und akzentuieren den Haupteingang auf der nördlichen Seite. Die Fassade und äußere Erscheinung des Gebäudes ist geprägt von großformatigen, feststehenden Fensterelementen, die sich in Richtung Norden auffächern und so eine Grundverschattung ermöglichen. Die gestaffelte Anordnung der opaken und transparenten Fassadenelemente verleiht dem Gebäude eine subtile Tiefe und lässt es in einem Spiel von Licht und Schatten changieren. Im Inneren ermöglichen offene, transparente Raumgefüge variierende Bürotypologien, die Bereiche für Kommunikation und Konzentration miteinander vereinen, sowohl für Kunden als auch für Mitarbeiter ein helles, abwechslungsreiches Arbeitsumfeld bieten.

Die Boden-, Decken- und Wandoberflächen werden weitestgehend in Sichtbeton ausgeführt, die Installationen und Haustechnik verschwinden im Hohlraumboden. Damit stellt der Ausbau zusammen mit der schwarzen Metalloberfläche der Fassade ein klar definiertes, stringentes Materialkonzept dar.

Um ein Höchstmaß an Flexibilität zu gewährleisten kann das Gebäude bei Bedarf auch in kleinere Einheiten aufgeteilt und vermietet werden. Zwei Hauptzugänge mit eigenem Foyer ermöglichen bereits im Erdgeschoss eine klare Trennung der Nutzer. Großzügige, transparente Treppenhäuser und offene Verbindungsbrücken ermöglichen eine schnelle Orientierung innerhalb des Gebäudes und stellen vielseitige visuelle Verbindungen nach innen und außen her.

Kategorie
Office
Area
8 400 m²
Status
Completed
Client
STI Immobilienmanagement Gmbh
Year
Location

Collaboration Partners

PMI, NOWAK PARTNER, Elka Ing. - Gesellschaft für Tragwerksplanung, Ingenieurbüro - Planung - Blei, Stageled GmbH, GF Reese Ing. GmbH & Co. KG, dr. heinekamp, Krebs + Kiefer, IFB Sorge