Skip to main content
Munich

LMU University Hospital Campus Grosshadern

The Grosshadern campus of the Ludwig Maximilian University (LMU) Hospital situated on the outskirts of Munich is one of the world’s leading medical sites and one of Europe’s largest university hospitals. This complex with its towering ward building dating back to the 1970s will be transformed into a green campus based on the design of the competition entry by HENN and C.F. Møller – an endeavor that will be the largest construction project in Bavaria for many years.

A networked organism

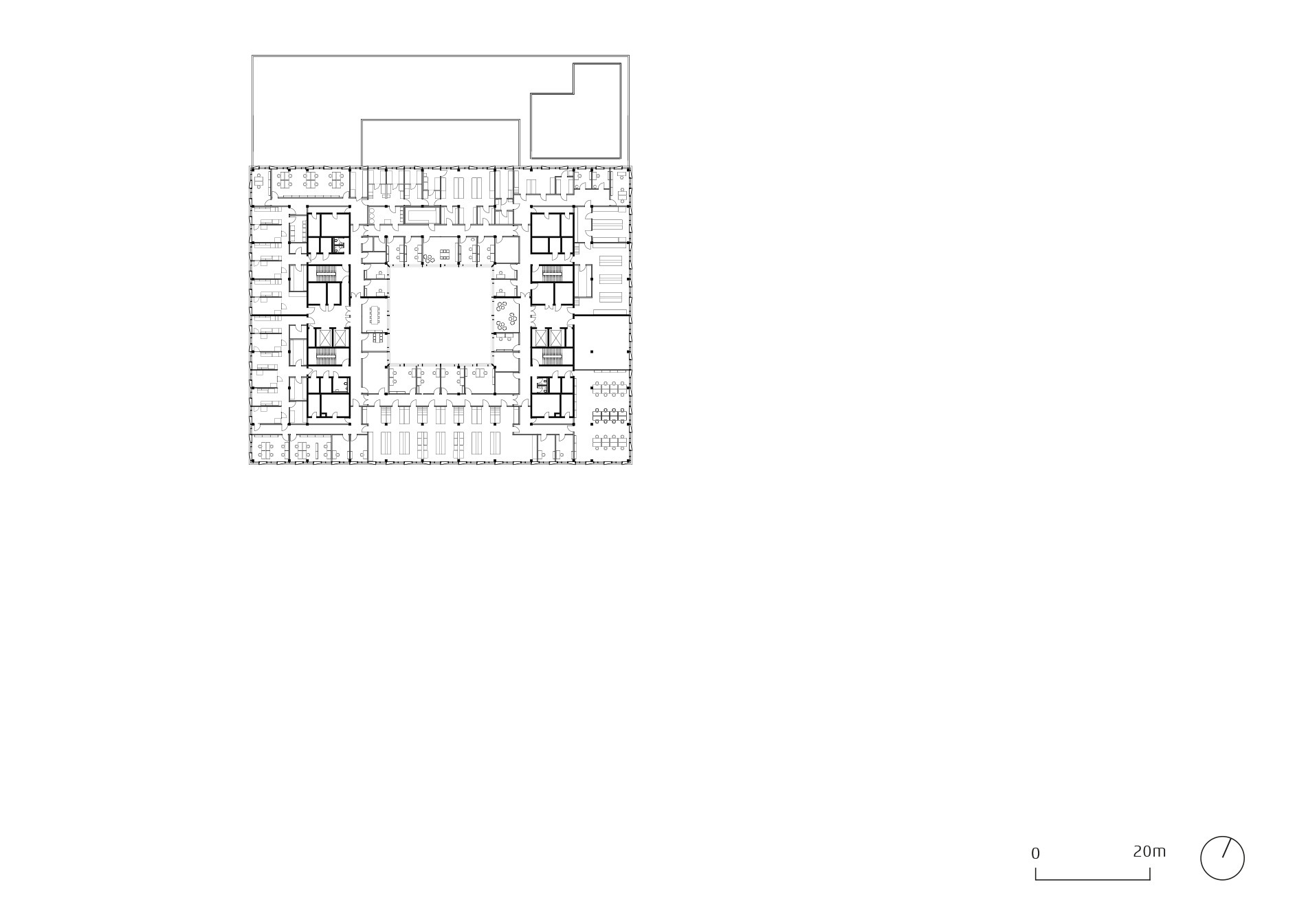
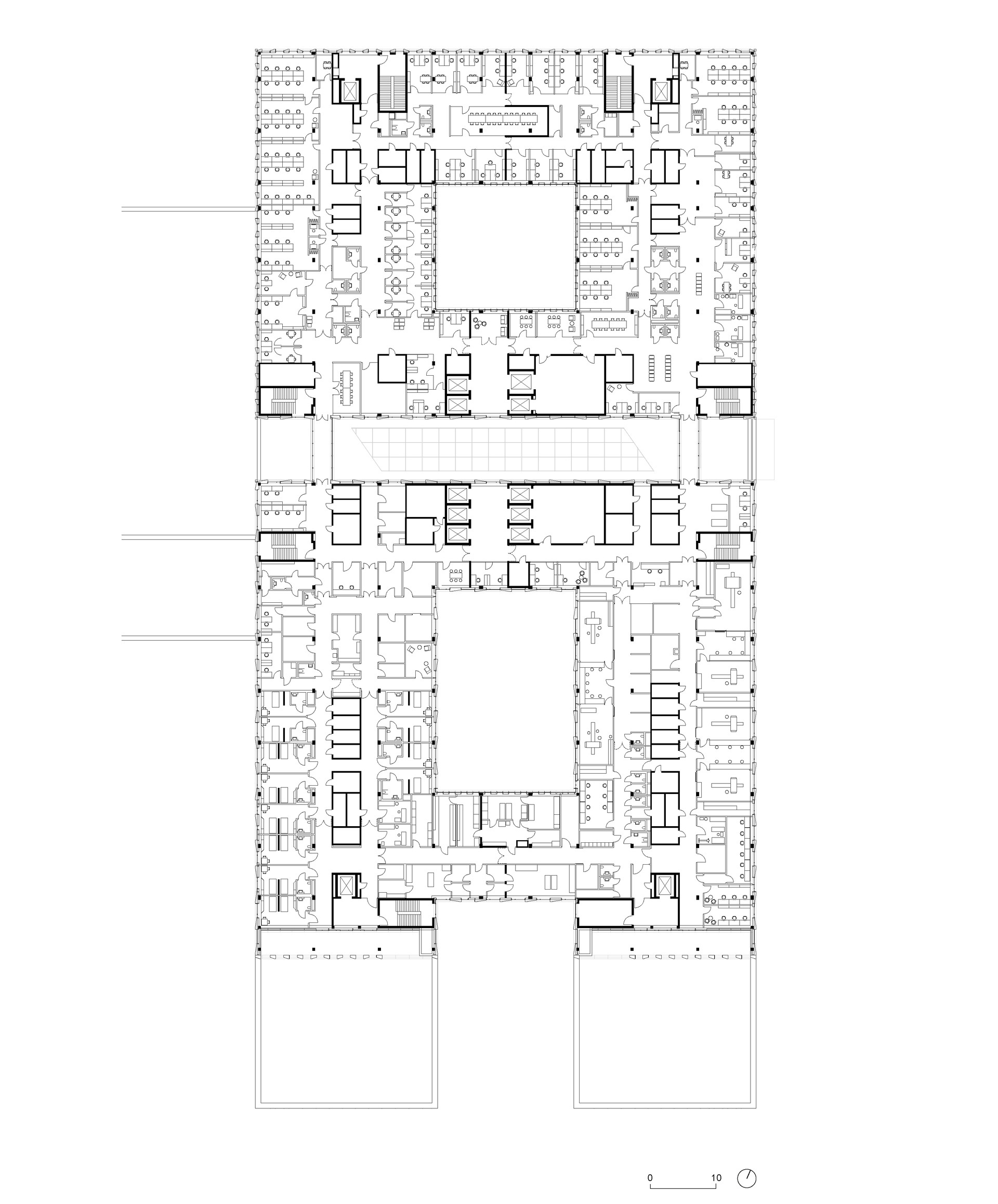
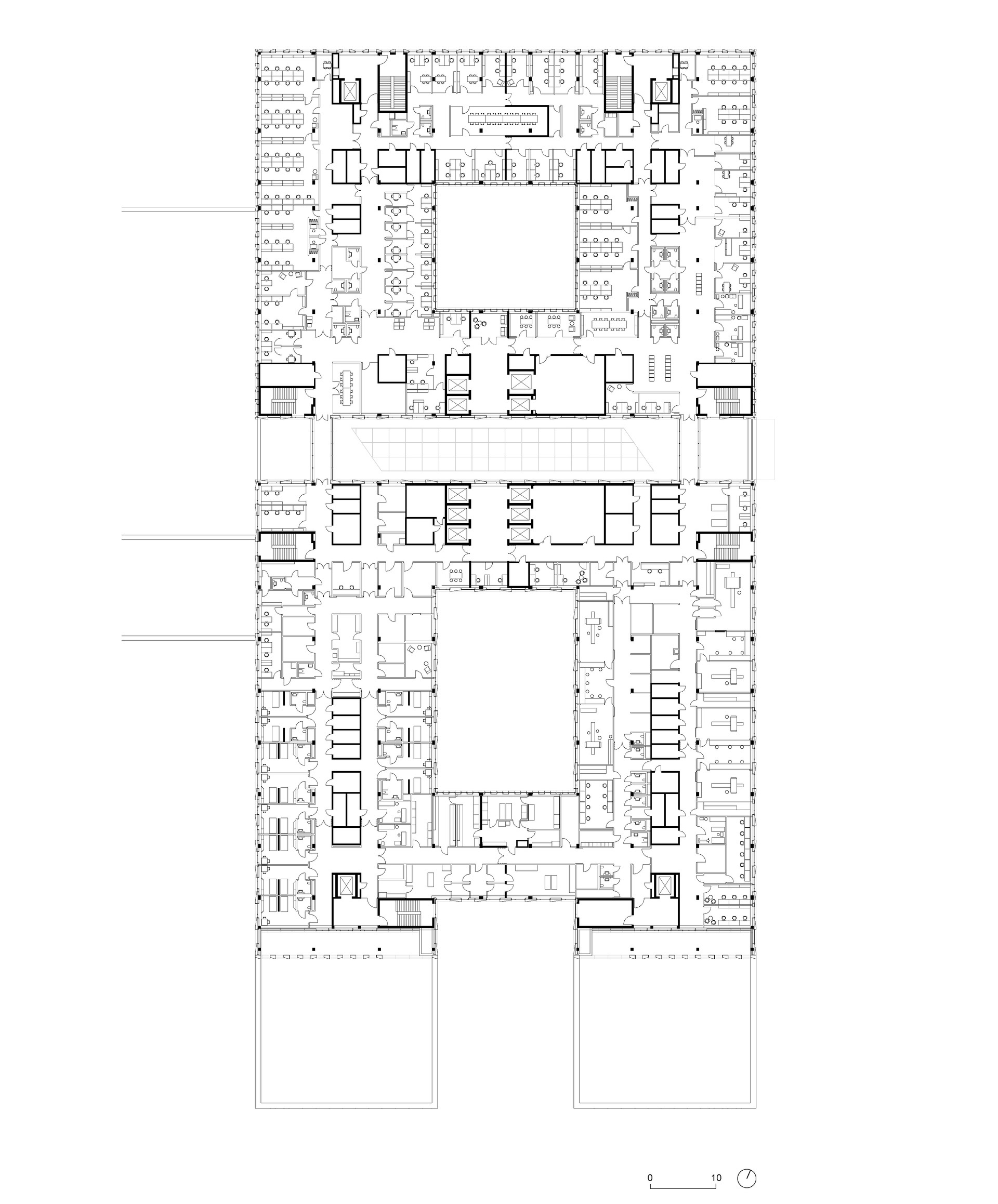
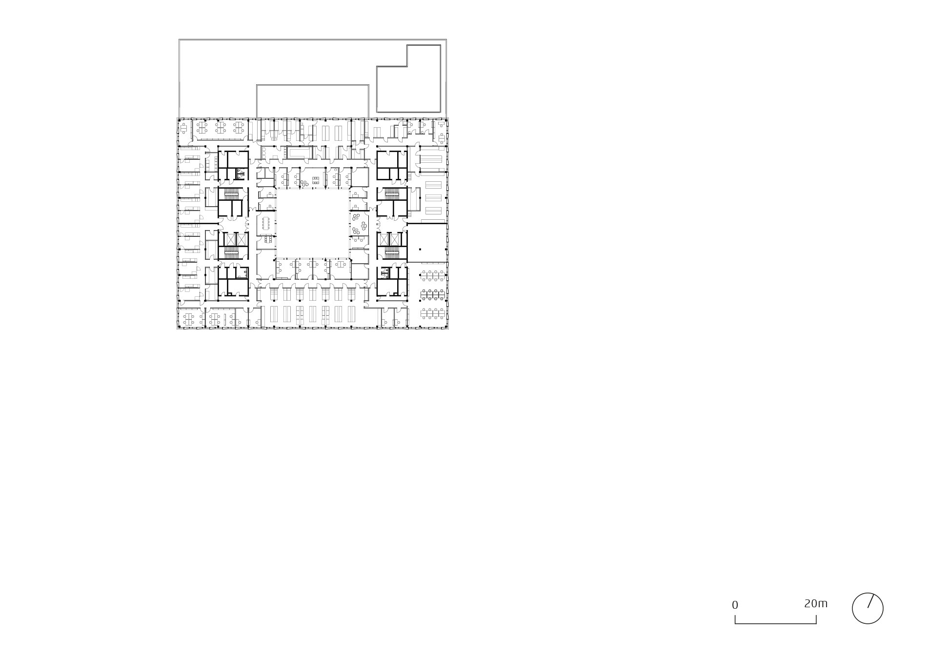
The hospital’s current appearance is dominated by the 200-meter-long, 13-story ward building, whose architecture reflects the fascination with technology of its time. In its current condition, however, it no longer meets the demanding requirements of state-of-the-art medical equipment. This is why a future-proof campus structure including six new clinical centers will be established over the course of several decades while the hospital continues to operate. As a networked organism, the new buildings will provide second-to-none medical care. 

A green and open medical campus

At the same time, the landscaping design intertwines with the architecture to create an atmosphere that promotes patient well-being and recovery, as well as a pleasant work environment for approximately 12,000 employees and students. A variety of themed gardens, numerous terraces as well as restaurants, cafés, and shops provide spaces for people to meet and interact.

Starting from the idea of a green, open, and connected medical campus, the new design deliberately contrasts the technoid feel of the existing building. The master plan puts people first, likening the campus to a small town, including well-structured, clearly arranged buildings, short distances, and clear guidance and orientation. Plenty of daylight and direct access to nature support the recovery process for patients.

The first project phase includes the new Heart, Lung and Vascular Center, the Oncology Center, the Diagnostics Center, and a prestigious entrance building in the northeastern part of the campus. Similarly designed façades emphasize their coherence, while different shades lend a distinct expression to each building.

Comfortable atmosphere meets efficient workflows

The buildings are grouped around a central axis that interlinks examination and treatment rooms as well as patients and staff while providing space for professional exchange and informal encounters. The surrounding nature – the “green lung” of the site – is omnipresent in all areas of the hospital complex thanks to interspersed green courtyards that function as spaces for retreat, rest, and relaxation.

To ensure efficient workflows within the new centers, the individual areas are stacked and interconnected horizontally. The lower floors accommodate logistics and diagnostics, while treatment and nursing areas are located on the floors above. The spatial structure of the levels follows a uniform pattern to facilitate orientation and workflows for nursing staff.

The building interiors also feature materials with a natural feel. In concert with warm colors, the specified floor and wall coverings create a comfortable atmosphere in the nursing rooms.

Transforming the Grosshadern campus of LMU University Hospital into a flexible, continuously evolving organism with a green lung will ensure top-class healthcare in the Bavarian capital for a long time to come while strengthening its position among the world’s leading medical institutions.

Category
Health
Area
80 000 m²
Status
Current
Client
Free State of Bavaria, State Ministry of Science and the Arts, represented by the State Building Authority 2 for the LMU University Hospital
Location
Munich, DE

Collaboration Partners

SINAI Gesellschaft von Landschaftsarchitekten mbH, Werner Sobek AG, Klett Ingenieur GmbH, SÜSS Beratende Ingenieure GmbH & Co. KG, Kersken + Kirchner GmbH, Regierungsbaumeister Schlegel GmbH & Co.KG, IGG Ingenieurgemeinschaft Grundbau GmbH, b.i.g. bechthold Ingenieurgesellschaft mbH, Müller-BBM Industry Solutions
GmbH, Teamplan GmbH, Ingenieurbüro Schmid + Partner, Dr. Heinekamp Labor- und Institutsplanung GmbH