Skip to main content
München

The SOURCE Hochhaus-Revitalisierung

In den 1960er Jahren wurde im Süden Münchens, im so genannten Isar Valley, Pionierarbeit auf dem Gebiet der Mikroelektronik- und Informationstechnologie geleistet und damit der Grundstein gelegt für die digitalisierte Welt, in der wir heute leben. Seit seiner Eröffnung 1964 steht das Hochhaus in der Baierbrunner Straße – jahrzehntelang Firmenzentrale von Siemens – als Wahrzeichen für dieses Gebiet.

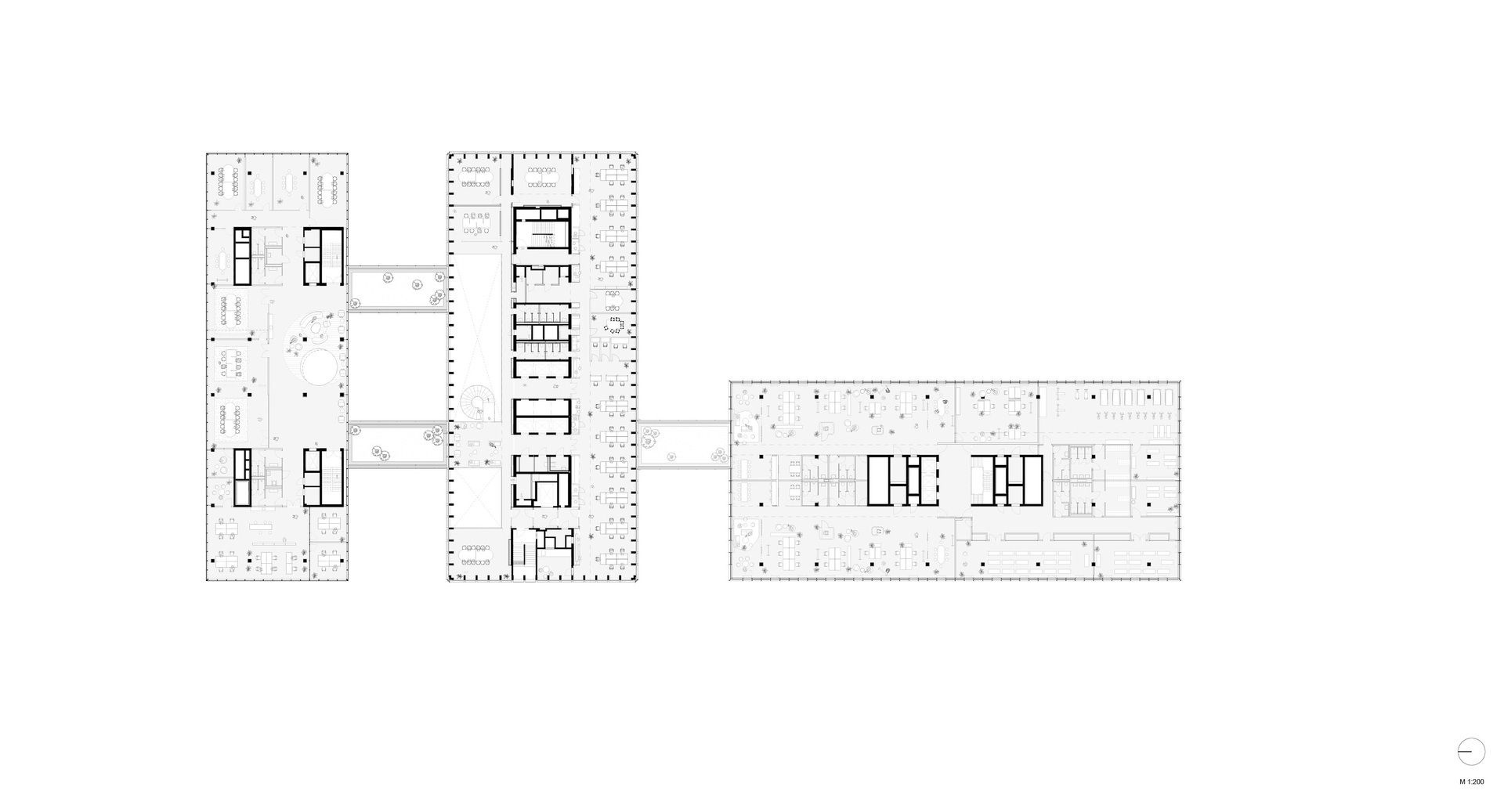
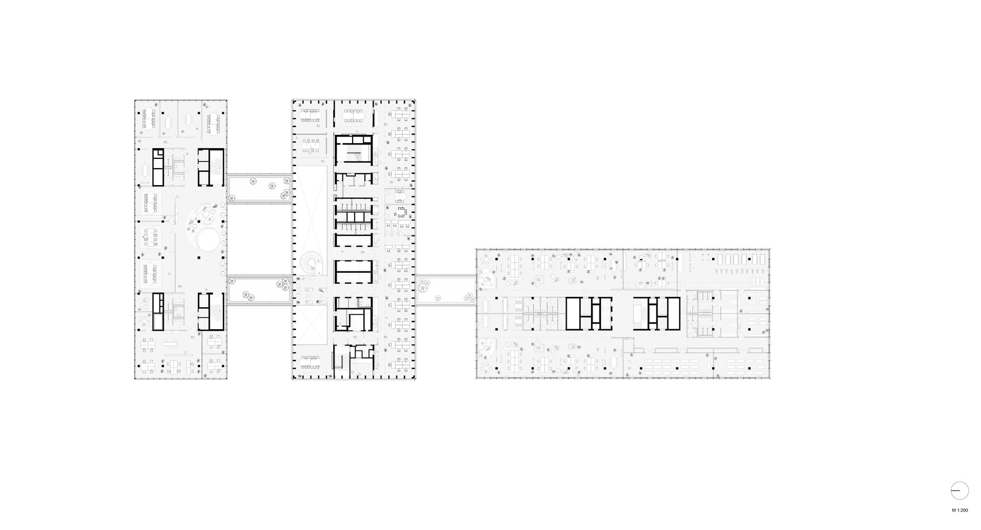
Nach Jahren des Leerstands wird das Gebäude nun von HENN behutsam saniert und mit zwei Neubauten zu einem energieeffizienten Mixed-Use-Büroensemble erweitert, genannt THE SOURCE.

Deutschlands südlichstes Hochhaus

Der Stadtteil Obersendling, in dem der 80 Meter hohe Bau weithin sichtbar über die Nachbarbauten hinausragt, hat sich seither von einem Industriestandort zu einem gemischten Quartier gewandelt. In der Nachbarschaft sind Wohnbauten unter anderem für Studierende und Senior*innen entstanden sowie eine stabile soziale und städtebauliche Infrastruktur.

Durch seine Höhe und Lage am südlichen Stadtrand vermittelt das Hochhaus zwischen dem urbanen Charakter der bayerischen Metropole und der grünen Voralpenlandschaft.

Ein zweites Leben für 15 000 m³ Stahlbeton

Der ikonische, von Hans Maurer entworfene Bau mit seiner reduzierter Formensprache bleibt so weit wie möglich erhalten. Nach der Entfernung von Schadstoffen wird das Tragwerk aufwendig saniert und ertüchtigt – eine bewusste Entscheidung gegen eine Entkernung.

So verbleiben 15 000 Kubikmeter Stahlbeton im Bestand, was einer Einsparung von über 5 000 Tonnen CO2 im Vergleich zu einem Neubau entspricht. Das freigelegte Tragwerk und damit die Geschichte des Gebäudes bleibt beim Ausbau im Inneren bewusst sichtbar.

Die beschädigte Glasfassade dagegen ist in Hinblick auf die Anforderungen an Energieeffizienz nicht zu erhalten. Mit der neuen Fassade wird jedoch das über viele Jahrzehnte stadtteilprägende Erscheinungsbild des Gebäudes bewahrt und in die Zukunft geführt.

Sie kommt ohne hohe Brüstungen aus, lässt dadurch mehr Tageslicht in das Gebäude ein und bietet Panoramaausblicke in alle Richtungen. Als Doppelfassade mit integrierten Photovoltaikpaneelen konzipiert, sorgt sie dafür, dass das Hochhaus, wie auch die beiden Neubauten, besonders energieeffizient betrieben werden kann.

Raum zum Arbeiten und Leben

Die beiden niedrigeren Neubauten im Süden und Norden ergänzen den Turm zu einem Ensemble. Alle Gebäude sind über ein zusammenhängendes öffentliches Erdgeschoss miteinander verbunden: Läden, Café, Restaurant und eine Kita verflechten den Komplex mit dem sozialen Gefüge des Bezirks.

Während sich der zur Stadt hin ausgerichtete Nordbau mit seinem urbanen Charakter am Bestandsbau orientiert, ist der Südbau eingebettet in den um rund 120 Bäume erweiterten Baumbestand und erhält ein begehbares Biodiversitätsdach mit Hügeln, Stauden und Sträuchern. Rundum geschützt von dichtem Grün ist der Tiefhof als terrassierte Spiellandschaft für die Kita gestaltet.

Im Norden die Stadt, im Süden die Berge

In den oberen Geschossen aller drei Gebäude knüpft die Nutzung an die Anfangsjahre des Gebäudes an. Mit Blick auf das Alpenpanorama im Süden und die lebendige Münchner Innenstadt im Norden entstehen inspirierende Arbeitswelten. Mit offenen und flexiblen Büroflächen, Smart Working, Fitness, Gastronomie und einer Sky Lounge mit überwältigendem Ausblick verbinden sich Leben und Arbeiten. Die von HENN Interior gestalteten Räume sind eine Hommage an die zukunftsoptimistischen 1960er Jahre.

Kategorie
Office
High-rise
Area
51 000 m²
Status
Current
Certification
LEED Platinum, WELL Platinum, Wired Score Platinum, Mobility Forward Platinum, Conformity with EU Taxonomy classification (envisaged)
Client
PG Baierbrunner Str. 54 S.à r.l.
Year
Auszeichnungen
Global Human Settlement Award on Planning and Design 2024, Urban Design & Architecture Design Award 2024, German Design Award 2023
Location
Munich, DE

Collaboration Partners

igb Ingenieurgesellschaft Burgert mbH, Bartenbach LichtLabor, bwp Burggraf + Reiminger Beratende Ingenieure, KAUPA Ingenieure, INOVIS Ingenieure, Jappsen Ingenieure, PMI, realgrün Landschaftarchitekten, SODA Group, Werner Sobek