Skip to main content
Nantong

Nantong Urban Planning Museum

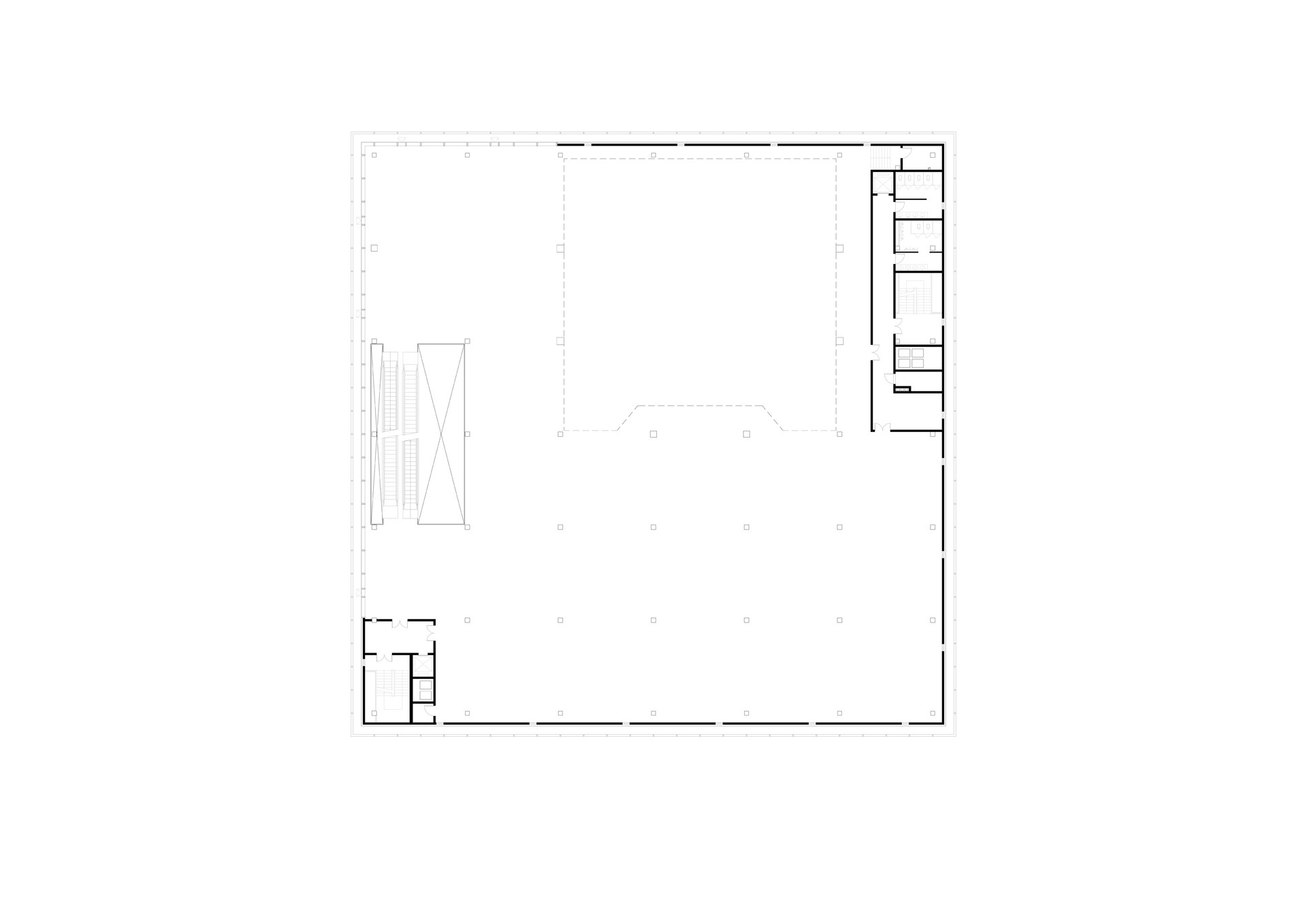
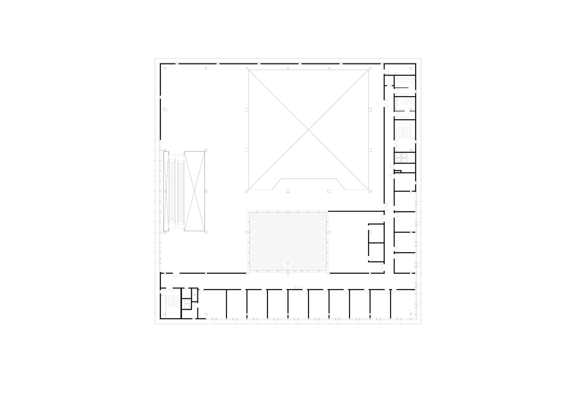
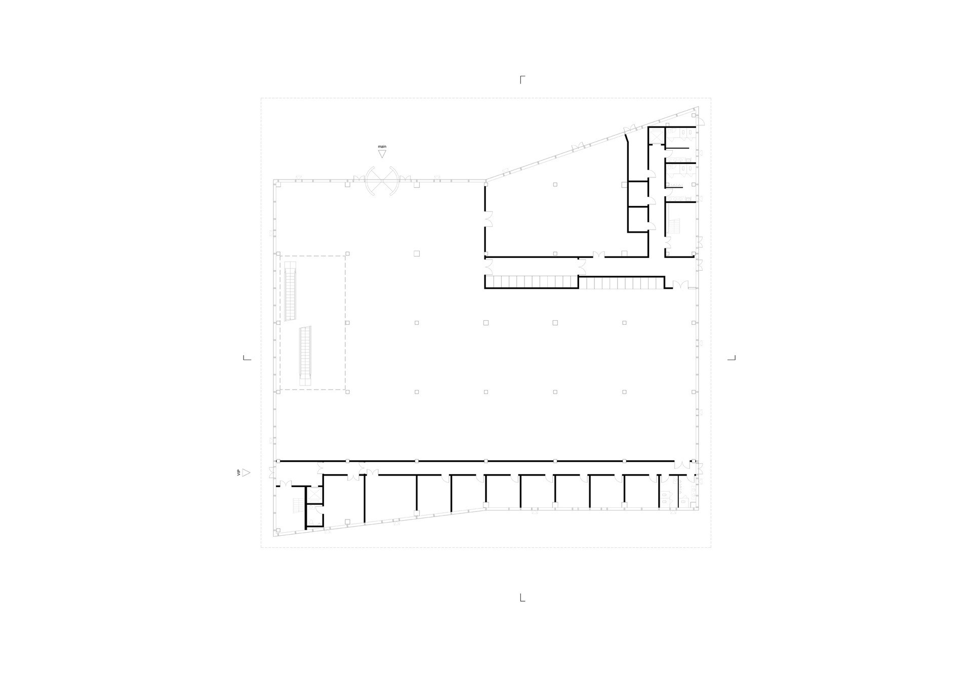
Als Teil des Masterplans Sportzentrum Nantong, befindet sich das neue Museum für Stadtplanung in prominenter Lage an einem Fluss, dessen Verlauf gemeinsam mit dem anderen kulturellen und kommerziellen Einrichtungen die repräsentative Ost-West-Achse von Nantong bildet. Das Gebäude zeichnet sich durch einen 16 m hohen, dreigeschossigen Quader aus, dessen gläserner Erdgeschosssockel, hinter den dominanten Obergeschossen zurückspringend, Raum für Sonderausstellungen, Café und Buchladen bietet. Darüber erschließen sich auf zwei Etagen Ausstellungs-, Konferenz- und Büroräume. Die markante Fassade der Obergeschosse, deren maximale Auskragungen die gläsernen Eingangsbereiche des Gebäudes markieren, setzt sich aus zwei Schichten zusammen: der inneren, thermisch funktionierenden Gebäudehülle, sowie der äußeren, netzartigen Metallstruktur.

Dieses rautenförmige Diagridmuster kann mit sieben verschiedenen Paneelen, die einen Öffnungsgrad von 9-60% zulassen, bestückt werden und so die Sonneneinstrahlung entsprechend des dahinterliegenden Programms in feinen Abstufungen regulieren. Während Ausstellungsräume durch eine nahezu geschlossene Fassade mit minimalen Öffnungen gekennzeichnet sind, erhalten Büros den maximalen Grad an natürlichem Tageslicht.

Kategorie
Culture
Area
8 100 m²
Status
Completed
Client
Urban Planning Department of Nantong Tongzhou District
Year
Auszeichnungen
China Architecture Award 2013
Location
Nantong, CN

Collaboration Partners

Feng Yu Zhu (A Blue Design), Tshinghua University Architecture Design Institute