Skip to main content
München

Fraunhofer Forschungszentrum AISEC

Forschen für die Praxis ist die zentrale Aufgabe der Fraunhofer Gesellschaft. Dieses Ziel verstärkend plant die Fraunhofer Gesellschaft in unmittelbarer Nähe des TU München Campus. Hier wird der Fraunhofer Forschungscampus Garching realisiert, an dem bis zu 6 Institute angesiedelt werden sollen. Ein übergeordneter Masterplan entwickelt ein Forum für den wissenschaftlichen Austausch des Forschungszentrums mit den benachbarten natur- und ingenieurwissenschaftlichen Fakultäten und Einrichtungen der „Science City Garching“. Der Masterplan für die Fraunhofer Institute fügt sich in diesen ein und formuliert interdisziplinäre Schnittstellen auch innerhalb des geplanten Gebäudeensembles. Die Gebäude der verschiedenen Bauabschnitte liegen an einem zentralen Anger, der als innere, fußläufige Erschließung dient und dem Standort eine einprägsame Struktur verleiht. Die Fraunhofer Einrichtung für Angewandte und Integrierte Sicherheit AISEC wird den 1. Bauabschnitt beziehen.

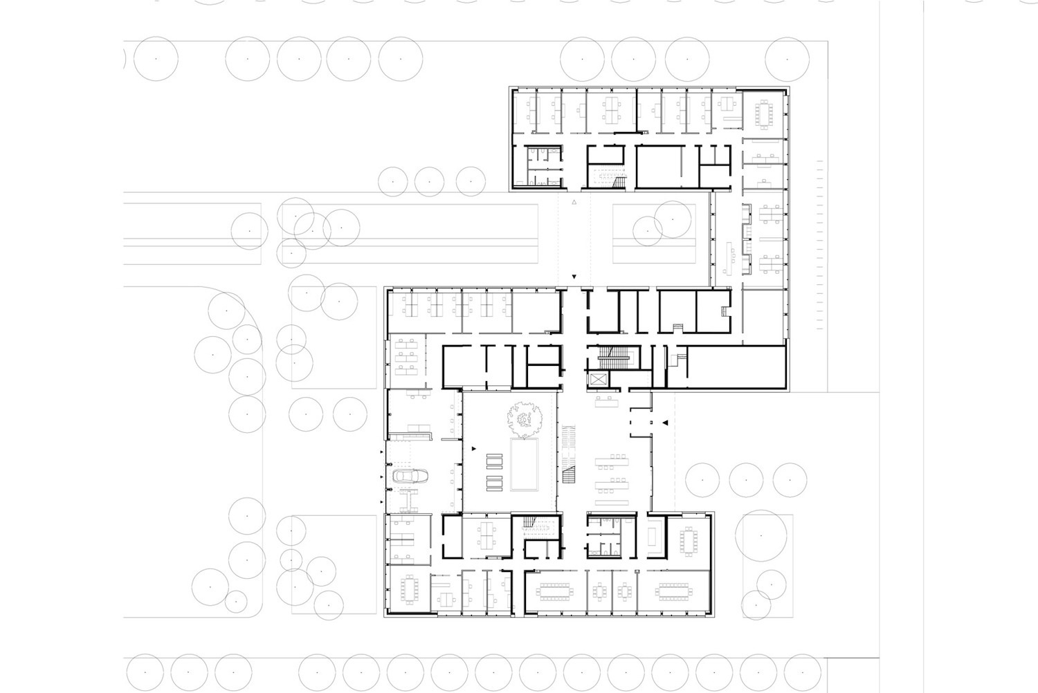
Der Neubau besteht aus zwei U-förmigen Gebäudeteilen, welche sich zu einem Mäander zusammenschließen. Somit sind alle Forschungsgruppen über kurze Wege erreichbar. Die gemeinsam genutzten Funktionen sind in einem Gebäudeteil untergebracht, der den Mäander „verklammert“, sich durch Fassadengestaltung und Bauvolumen heraushebt und als Haupteingang dient. Das Konzept thematisiert die unterschiedlichen Funktionen des Gebäudes und schafft ein differenziertes Ensemble, das sich durch Außenräume unterschiedlicher Qualität mit dem Fraunhofer Forschungscampus vernetzt.

Die klare Strukturierung der Funktionsbereiche und die räumliche Vernetzung im Zentrum machen das Gebäude für die Mitarbeiter zu einem besonderen Ort. Hier wird ein perfektes Umfeld für anspruchsvolle Forschungstätigkeit geschaffen.

Kategorie
Science
Area
8 500 m²
Status
Completed
Client
Fraunhofer-Gesellschaft
Year
Location

Collaboration Partners

Wetzel & von Seht, Climaplan – Ingenieure für Versorgungstechnik, Latz + Partner, Müller-BBM, iPb – Ingenieurbüro Planung Blei, dr. heinekamp, Süss Beratende Ingenieure