Skip to main content
Innovatives Atrium mit Glaswänden, Begrünung, integrierter Technik und gemeinschaftlichen Sitzgelegenheiten - konzipiert für Forschung und industrielle Spitzenleistungen.
Hamburg

EDGE HafenCity

Im Westen der Hamburger HafenCity entwickelt sich aus ehemals industriell genutzten Hafenflächen ein vielfältiges neues Stadtviertel für Wohnen, Arbeiten und Freizeit. Mit dem EDGE HafenCity ist im Elbbrückenquartier nun ein weiterer wichtiger Baustein entstanden. Das energieeffizient geplante Bürogebäude fördert aktiv Interaktion und Kollaboration: Es bringt nicht nur die Menschen zusammen, die hier arbeiten, es öffnet sich auch Gästen und Menschen aus der Nachbarschaft.

Kommunikation als Mittelpunkt

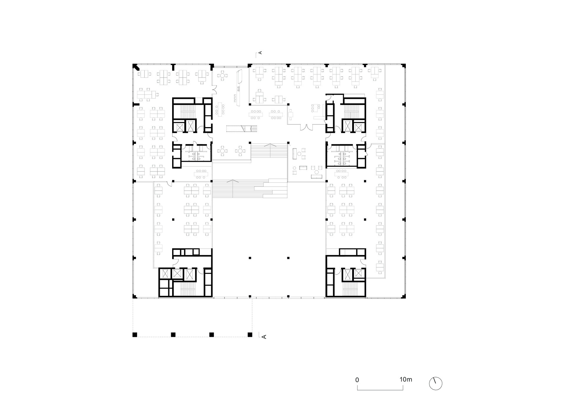
Der Neubau setzt sich aus zwei Gebäudeteilen zusammen – einem siebengeschossigen quadratischen Baukörper und einem Turm, der diesen mit einer Gesamthöhe von knapp 60 Metern im Südwesten überragt. Mit seinem quadratischen Gebäuderaster lässt sich das in einzelne Büroeinheiten unterteilte Gebäude flexibel nutzen.

Zweigeschossige Arkaden und eine stützenfreie acht Meter weite Auskragung markieren den Haupteingang des Gebäudes am Amerigo-Vespucci-Platz. 

Kommunikatives Herzstück des Neubaus bildet ein zentrales Atrium, das auch für Gäste öffentlich zugänglich ist. Eine offene Treppe windet sich spiralförmig um den zentralen Luftraum und verbindet alle Geschosse miteinander. Auf jeder Ebene entstehen an der Treppe terrassenförmige PlateausDer Neubau schreibt so die Gestaltung des umgebenden Platzes mit Treppen und Terrassen im Inneren fort.

Arbeit, Begegnung und Erholung

Das Gebäude ist wie eine kleine Stadt konzipiert, die Raum für Begegnungen und Austausch, gemeinsame Lunch- und Kaffeepausen sowie individuelle Entspannung schafft. Im Erdgeschoss befinden sich Gastronomie- und Konferenzbereiche, in den Obergeschossen die mietbaren Büroflächen mit Zonen für kollaboratives und konzentriertes Arbeiten. Sie stehen allen Mieter*innen als gemeinsame Aufenthaltsbereiche zur Verfügung. Ebenso die umlaufende, üppig bepflanzte Dachterrasse, die der Erholung dient.

Über das Atrium und die großformatigen Fenster fällt reichlich Tageslicht in die Innenräume. Es sorgt gemeinsam mit Pflanzen, natürlichen Materialien und vernetzten digitalen Technologien für eine komfortable Atmosphäre – zum Arbeiten und für ein soziales Miteinander.

Sozial und ökologisch verantwortungsbewusst

So wie sich das EDGE HafenCity mit seinem offenen und vielfältigen Konzept mit dem sozialen Umfeld vernetzt, fügt sich seine rote Fassade visuell in das städtebauliche Gefüge der östlichen HafenCity ein. Alle Dachflächen des Gebäudes sind als Retentionsdächer ausgebildet und größtenteils intensiv begrünt. Das Turmdach ist mit Photovoltaik-Paneelen zur Stromversorgung ausgestattet. 

Mit dem EDGE HafenCity ist ein Bürogebäude entstanden, das mit seiner innovativen Arbeitswelt Kollaboration und Kreativität fördert, und zu einem aktiven Baustein des sozialen Gefüges im neuen Elbbrückenquartier wird.

Kategorie
Office
Area
25 600 m²
Status
Completed
Certification
Umweltzeichen HafenCity Platin, WELL Core & Shell Platin
Client
EDGE Technologies
Year
Location

Collaboration Partners

Atelier Loidl (outdoor facilities planning), Wetzel & von Seht (structural engineering), ZWP Ingenieur-AG (Building services), Müller-BBM (building physics), hhpberlin (fire protection), KFE – Kucharzak Fassaden Engineering (façade), atmosgrad° (sustainability), Buro Happold (WELL certification)