Skip to main content
Berlin

Robert Koch Institute

The new Robert Koch Institute Building in Berlin-Wedding contains a high-security Biosafety Level 4 Laboratory. Here, scientists are researching highly pathogenic agents such as Ebola or Lassa viruses.

The research machine

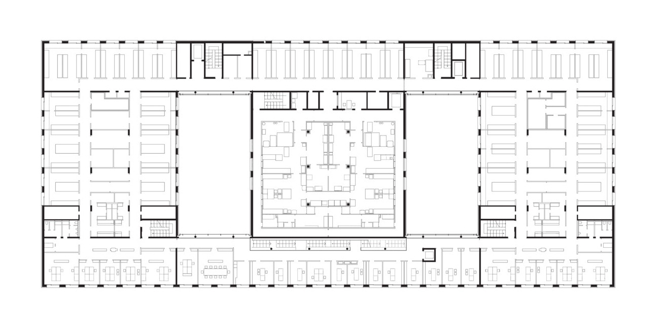
The aerosol and air-tight rooms are shielded by multi-level security systems. The rooms are located in a cube-shaped concrete construction which forms the centre of the new research building.

Inner courtyards and pass-through chambers separate the BSL4 Laboratory from the other research buildings. The safety technology for this laboratory is located in the floors above and below its rooms on the second floor and guarantees, among other things, that neither air nor waste water can pass unfiltered out into the environment.

A high-security laboratory in the middle of Berlin

"The new laboratory strengthens Berlin as a research location and is also ideally located with its proximity to the special isolation ward of the Charité Campus Virchow Clinic."

-Prof. Dr. Lothar H. Wieler

All together, this offers 22,000 m² of space for laboratories, offices and meeting rooms. In the direct vicinity of Virchow Hospital, the Charité University Hospital’s special isolation centre and the German Heart Institute, the new building is a major component for the infrastructure of the Robert Koch Institute. The building brings all the Berlin facilities of this renowned national institute together onto the Seestrasse site.

The red brick façade of the elongated cube continues the appearance of the surrounding buildings. With a central entrance area on its longer side, the building is oriented towards the adjacent campus. The two-storey circulation foyer creates a spacious entrance with continuous glazing, which opens to the outside world, while providing views of the internal courtyards on either side.

The Institute’s offices and meeting rooms face west towards the campus. Standard laboratories are arranged around the inner courtyards and along the outside of the building, supplemented with the internal service areas.

Category
Science
Area
22 150 m²
Status
Completed
Client
Bundesamt für Bauwesen und Raumordnung
Year
Location
Berlin, DE

Collaboration Partners

Krone Ingenieure, Weber & Partner, eretec, Müller-BBM, Priedemann Fassadenberatung, HHP Süd, Landschaft planen + bauen, DEKRA, Sehlhoff, SIX Engineers, b.i.g. bechtold INGENIEURGESELLSCHAFT