Skip to main content
Innovative white facility with expansive windows, sustainable landscaping, and drones, illustrating a tech-forward research environment.
Schweinfurt

Center for Robotics CERI

On the outskirts of Schweinfurt, a new campus for the Würzburg-Schweinfurt Technical University of Applied Sciences (THWS) offering its international STEM degree programs is currently under construction. One of its core elements is the new Center for Robotics (CERI) dedicated to research into and development of intelligent robotic systems. It combines laboratories and workshops for robotics and mechatronics in a single building to create a groundbreaking link between education, research, and production engineering.

A place for communication and collaboration

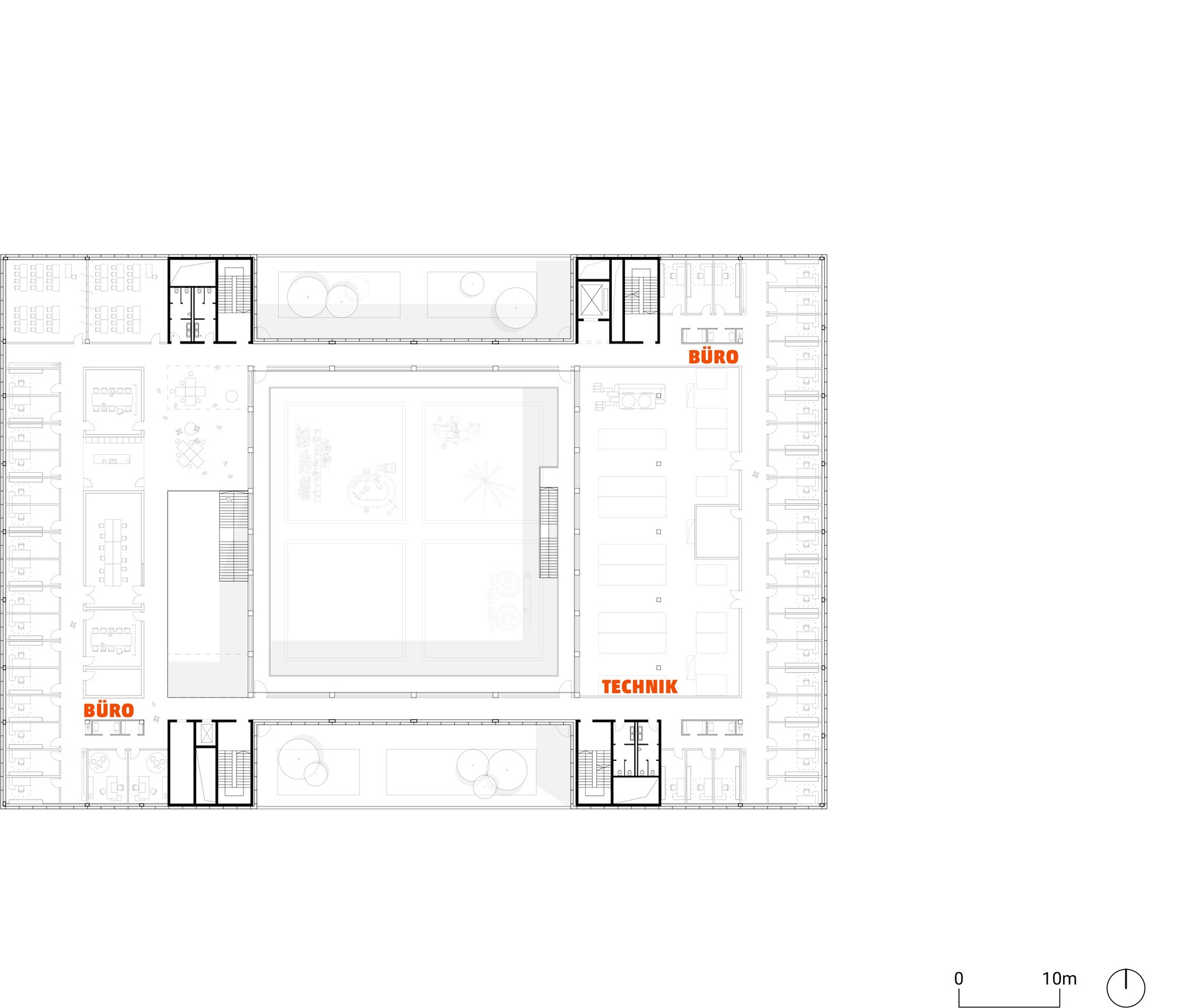
The underlying idea of the proposed new building is to meet the needs of the sophisticated teaching environment of the robotics degree course while bringing together almost 350 students and employees in a communication-driven, collaborative center. Situated in the eastern part of the campus, CERI will be accessed via an inviting forecourt featuring planted “islands” that connects to the entrance at the corner of the building.

At its heart is the open, centrally located production area that extends all the way from the ground floor to the roof. Its clear-span structure provides unobstructed access to the areas designed for production and development.

To ensure efficient use of space, laboratories and lecture halls are located on the ground floor, while the first floor accommodates office spaces. A gallery allows researchers to work on the production lines on the first floor, too. A freight elevator transports equipment and machinery from the production hall to the flat roof, which includes a vertiport. The landing pad, parking space, and hangar designed for drones are arranged one after another in a straight line to provide a flight path suitable for air traffic.

Functional aesthetics

The CERI façade combines aesthetics with functionality: Glazed areas on the first floor’s north and south sides provide the production area with plenty of natural light. White perforated aluminum panels that refract direct light but allow sufficient sunlight to penetrate the interior characterize the façade’s visual appeal. They obstruct direct views to provide privacy, ensuring confidential work on the ground floor. The panels are designed either as fixed elements or operable shutters. The shutters open or close automatically in real time depending on the amount of sunlight, thus controlling temperature and brightness.

The CERI design incorporates aspects of sustainability by using recycled aluminum, which ensures greater resource efficiency while reducing energy consumption. Its compact layout minimizes energy requirements, while extensive green roofs promote biodiversity, and solar panels generate renewable electricity. The decision not to build a basement also reduces material consumption and construction-related greenhouse gas emissions.

CERI is an innovative building designed for research and teaching that strengthens the city of Schweinfurt’s role as a driver of innovation and a unique location in Germany for robotics – a technology that will play a crucial part in shaping science, the economy, and society in the future.

Category
Education
Area
6 600 m²
Status
Competition
Client
Staatliches Bauamt Schweinfurt
Year
Location
Schweinfurt, DE

Collaboration Partners

Sailer Stepan Tragwerkteam München GmbH (support structure), Ingenieurbüro ZAMMIT GmbH (Technical Building equipment), KERSKEN + KIRCHNER GmbH (Fire protection), BATT Suisse GmbH (Heli- and Vertiport systems), Lilium GmbH (Drone manufacturer)