Skip to main content
Shenyang

BMW Production Plant

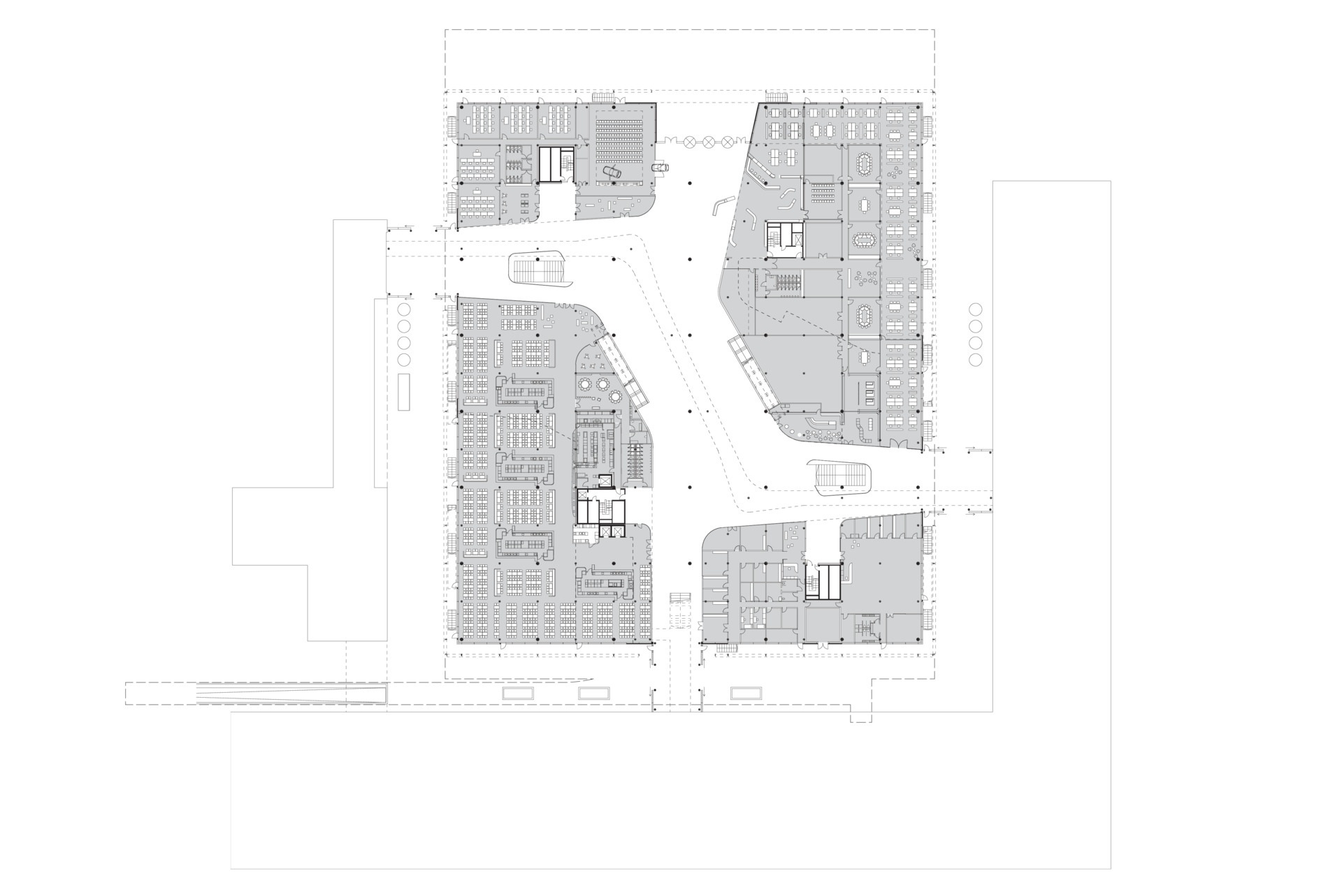
The Tiexi facility is the second production site in Shenyang for the Brilliance/BMW joint venture, adding to the car-maker’s first plant in Dadong. Since construction first started in 2009, the site now finds itself in a third expansion phase. The main entrance and office building lie at the centre of the whole works, which comprises a press works, paint shop and final assembly line. The below-ground storeys house the social and locker rooms for all the employees at the works. Visible to all employees and visitors, a conveyor belt snakes through the terraced, curved office landscapes. It transports car bodies fabricated in the works from the paint shop to the final assembly line. All employees and visitors are thus continuously made aware of the production process and quality standards of the products. The roof of the 100 x 100 metres main building is characterised by a parametrically designed pattern of skylights, which, in combination with light reflectors, bring daylight into the open office floors.

Category
Industry
Area
220 000 m²
Status
Completed
Client
BMW Group
Year
Location

Collaboration Partners

Köppl Ingenieure, PMI, Kersken + Kirchner, Regierungsbaumeister Schlegel, LUZ Landschaftsarchitekten, iPb – Ingenieurbüro Planung Blei, Ingenieurbüro Meyer, Planungsgruppe M+M, SIAD Suzhou Institute of Architectural Design; SCIVIC Engineering Corporation, LuoYang