Skip to main content
© Institut Heidersberger
Braunschweig

Hauptmensa der TH Braunschweig

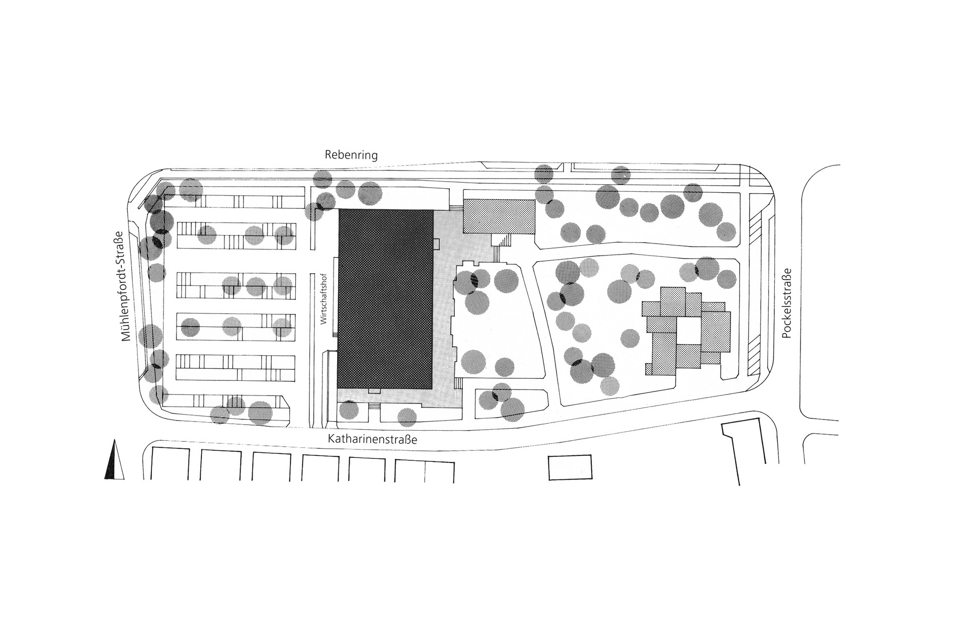
Infolge der veränderten Hochschulpolitik der Bundesrepublik vervielfachten sich in den 1950er Jahren die Studentenzahlen. 1960 schrieb das Land Niedersachsen einen Wettbewerb zur Schaffung neuer Räume für das akademische Leben von etwa 5000 Studenten der TU Braunschweig aus. Walter Henn ging als erster Preisträger hervor mit seiner Lösung der räumlichen Trennung der Funktionen in drei Solitärbauten: eine in sich geschlossene Mensa (1962), ein Gebäude für das Studentenwerk (1968/69) und ein Studentenhaus (nicht realisiert).

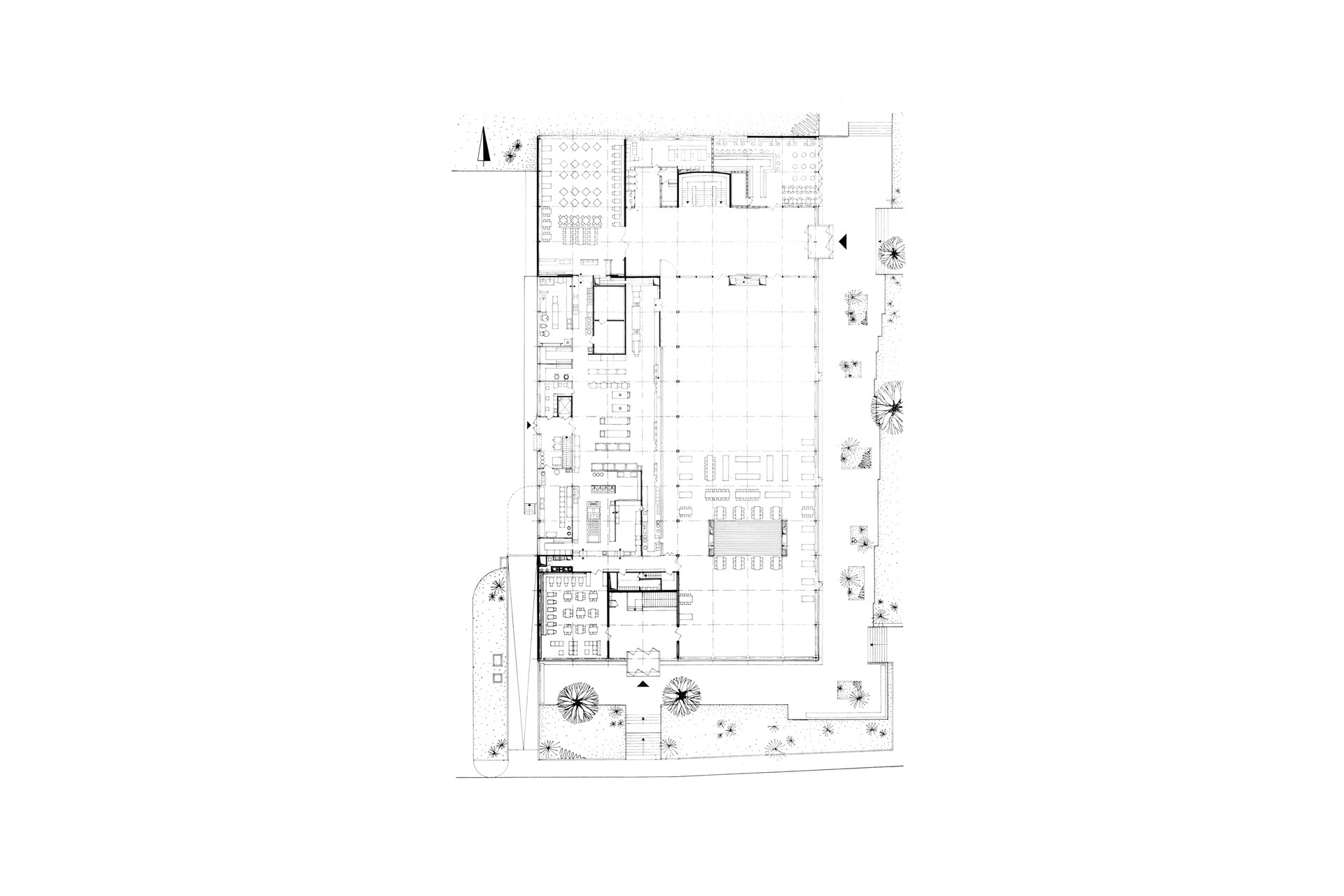
Die in der ersten Bauphase errichtete Mensa öffnet sich zur parkähnlichen Anlage des aufgelassenen Katharinenfriedhofs. Ihr langgestreckter, eingeschossiger Baukörper steht in wirkungsvollem Kontrast zum alten Baumbestand. Die Verwendung von nur drei Materialien – Aluminium, Stahl, Glas – an der zum Park orientierten Ostfassade unterstreicht die strenge, sachlich-reduzierte Gliederung des Bauwerks und lässt den Unterschied zwischen Gebautem und Gewachsenem noch deutlicher werden. Im Inneren ist die Mensa in mehrere Speisesäle untergliedert, nicht nur um den Eindruck einer Massenabspeisung zu vermeiden, sondern auch aus funktionalen Überlegungen heraus. Im Vorfeld durchgeführte Funktionsstudien hatten ergeben, dass alle Speiseräume und die dazugehörigen Küchen auf einer Ebene liegen sollten. So sind alle Speiseräume um einen großen Küchenkern angeordnet, wobei die beiden großen Säle zum Park orientiert sind und mit ihren vorgelagerten Terrassen eine unmittelbare Verbindung zum Grünen erzeugen. Im Untergeschoss, ausgeführt als Stahlbetonskelett, befinden sich Garderobe, Nebenräume, eine Kegelbahn und Tischtennisräume. Das Erdgeschoss wurde als Stahlkonstruktion realisiert und besteht aus 16 Fachwerkbindern mit einem Abstand von je fünf Metern. Sie überspannen zwei Felder von 19,75 Meter, wodurch Küchen und Speisesäle von allen Stützen und tragenden Wänden frei gehalten werden konnten.

Fotos: Heinrich Heidersberger

Kategorie
Education
Area
1 685 m²
Status
Completed
Client
TH Braunschweig
Year
Location
Braunschweig, DE